全ての一戸建て・マンション・土地・収益物件・賃貸物件の売却購入情報|関西ネット不動産

西宮市、尼崎市、伊丹市、芦屋市、宝塚市の売買仲介(ご売却・ご購入)、査定、賃貸仲介、賃貸管理は関西ネット不動産へ

西宮店0798-31-0119、尼崎店06-4950-6311、北大阪店072-737-4787、大阪南森町店06-6360-4511、新大阪店06-6152-7878

ご相談・お問い合わせ無料!(営業時間 9:00〜18:00 定休日:火曜日、水曜日)

TOP > 物件一覧

関西ネットリフォーム 空家相続センターオープンハウス お客様の声 採用情報

販売物件情報
一覧へ戻る

成約済 川西市緑台3丁目新築戸建 物件ID 1307

堂々完成!!限定1区画の新築戸建!土地面積約59坪!南向きで採光良好!広々とした南庭あり!

価格 交通 土地面積 建物面積 間取り 築年数
成約済 能勢電鉄妙見線 平野駅 バス7分 徒歩3分

196.37m² 107.73m² 4LDK 平成28年8月完成予定
堂々完成しました!

堂々完成しました!

画像

南向きで採光良好!広々とした南庭も魅力的!

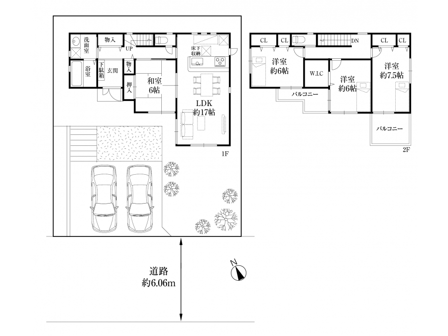
  • 広々としたリビング! 約17帖

    広々としたリビング! 約17帖

  • カウンター式システムキッチン

    カウンター式システムキッチン

  • 駐車場 並列2台駐車可能です!

    駐車場 並列2台駐車可能です!

  • 浴室も広々ゆったりサイズです!

    浴室も広々ゆったりサイズです!

その他ギャラリー

担当者メッセージ
スタッフ画像

三澤 幸司

担当者詳細

川西市緑台三丁目新築戸建

 

第一種低層住居専用地域の

閑静な住宅街に

限定1区画の新築戸建が登場!

 

堂々完成しました! 

完成披露内覧会開催します!

お気軽にご来場くださいませ!

 

 

■駐車スペース並列2台分!

 並列ですので日々のお車の

 出し入れもらくらく!

 車が1台の方は、

 自転車やバイク置き場としても

 とっても便利なスペースです!

 前面道路も広々6mありますので、

 駐車が苦手な方でも停めやすい

 駐車場です!

 

■広々とした南庭あり!

 リビングの前には広々とした

 南庭があり、さらに開放感のある

 空間です! 

 小さなお子様が遊ぶスペースとしても

 ガーデニングスペースとしても

 魅力的なお庭です!

 

 

■土地面積 196.37㎡

        (約59.40坪)

 土地面積もゆったり約59坪!

 間口も広々約13mの整形地!

 

■建物面積 107.73平米

 広々とした4LDK!

 南向きバルコニーで採光良好!

 

■ウォークインクローゼット

 床下収納あり!

 各居室・廊下にも収納が

 たくさんあります!

 特に広々ウォークインクローゼットには

 季節物などもたくさん収納できそうです!

 

■玄関前の廊下には

  大きな収納があります!

 洗面所が近いので、ストックの洗剤や

 日用品を収納するスペースとしておすすめ!

 

■LDK 広々約17帖!

 1階に設けたLDKは約17帖の

 広々としたスペース!

 南向きの明るく開放感ある

 リビングスペース!

 和室と繋げて使うと 約23帖の

 ゆったりとした空間に!

 小さいお子様がいる方は、

 お子様の様子を見ながら家事が

 出来ますので、とても便利な空間です!

 

 

【学校区】

・緑台小学校 約970m

・緑台中学校 約1,800m

 

 

リフォームページが拡大リニューアル致しました!
関西ネットリフォームHP
小規模リフォームから全面リノベーションまで、関西ネットリフォームにお任せください。
物件探しからリフォーム・リノベーションまでのワンストップサービスや、賃貸物件の空室対策リフォーム、店舗設計、解体工事まで、幅広くお手伝いさせていただきます。
楽しく、快適に暮らしていただきたいをモットーに、関西ネットリフォームでは真心を込めたリフォームをご提案致します。
こちらのホームページでは施工事例を多数掲載しておりますので是非ご覧ください!

物件情報
物件名 川西市緑台3丁目新築戸建
所在地 川西市緑台3丁目2-76
交通 能勢電鉄妙見線 平野駅 バス7分 徒歩3分

価格 成約済
土地面積 196.37m²(59.4坪)
建物面積 107.73m²(32.58坪)
築年月 平成28年8月完成予定
構造 木造
階数 2階建
方位
間取り 4LDK
設備 洗面・トイレ・浴室 温水洗浄便座/トイレ2カ所/シャワー付き洗面台/追い炊き/浴室乾燥機
キッチン システムキッチン/対面式キッチン/浄水器
収納 床下収納/ウォークインクローゼット
その他設備 TVモニター付きインターホン
バルコニー・庭 南面バルコニー/庭
駐車場 並列2台駐車可能
土地権利 所有権
用途地域 第1種低層住居専用地域
建ぺい率 50%
容積率 80%
接道状況 南側公道幅員約6mに約13m接面
現況 未完成
引渡し 相談
取引態様 専属専任
小学校区 緑台小学校 約970m
中学校区 緑台中学校 約1,800m
周辺地図

大きな地図を見る

※物件の周辺イメージを表すものであり、実際の物件とは異なる場合がございます。

お問い合わせ
お問い合わせ内容(*)

お名前(*)
フリガナ
メールアドレス(*)
電話番号(*)
FAX番号
その他ご質問・要望など
ご連絡方法の指定(*)
同じエリアの物件
画像

一戸建て

成約済

物件ID 3528

川西市鼓が滝2丁目中古戸建 リフォーム物件

◎敷地143.34㎡(約43.36坪) ◎リフォーム物件にて室内・設備綺麗です!◎南西向きにて陽当たり良好! ◎並列駐車2台可! ◎

所在地:
川西市鼓が滝2丁目6-15
価格 交通 土地面積 建物面積 間取り 築年数
成約済 能勢電鉄 日生中央線  鼓が滝駅 徒歩約8分

143.34m² 100.19m² 4LDK 平成16年4月
画像

一戸建て

成約済

物件ID 3461

川西市東畦野山手2丁目中古戸建 ※リフォーム物件

●リフォーム完工後のお引渡し ●南向きにて陽当たり・通風良好 ●軽量鉄骨造2階建 ●LDK約19.7帖で広々です!

所在地:
川西市東畦野山手2丁目6-7
価格 交通 土地面積 建物面積 間取り 築年数
成約済 能勢電鉄妙見線 畦野駅駅 徒歩6分
能勢電鉄妙見線 一の鳥居駅駅 徒歩14分
135.56m² 110.1m² 3LDK 平成9年2月
画像

一戸建て

成約済

物件ID 3404

川西市東多田2丁目中古戸建 築浅リフォーム物件

◎リフォーム完工後のお引渡しです◎縦列駐車2台可(普通車)◎東向き玄関ですが南側に面するLDKは陽当たり良好です!◎能勢電鉄『鼓滝』駅徒歩約8分です!◎徒歩圏内に商業施設充実!

所在地:
川西市東多田2丁目19-22-2
価格 交通 土地面積 建物面積 間取り 築年数
成約済 能勢電鉄 鼓滝駅 徒歩8分

141.47m² 99.36m² 4LDK 平成28年7月建築
画像

一戸建て

成約済

物件ID 3267

川西市松が丘町中古戸建※リフォーム物件

リフォーム渡しの物件です! 南東向きで陽当たり・通風良好! 駐車場2台可!

価格 交通 土地面積 建物面積 間取り 築年数
成約済 阪急宝塚線 川西能勢口駅 徒歩約18分
能勢電鉄 滝山駅 徒歩約19分
JR福知山線 川西池田駅 徒歩25分
188.52m² 129.69m² 5LDK+N 2002年12月
画像

一戸建て

成約済

物件ID 2813

川西市錦松台テラスハウス

駐車スペース1台分あり!2017年に室内リフォーム済みで室内綺麗です!

所在地:
川西市錦松台29-16
価格 交通 土地面積 建物面積 間取り 築年数
成約済 阪急宝塚線 川西能勢口駅 バス9分 徒歩西多田停5分

69.99m² 70.47m² 4DK 1988年3月

■西宮市・尼崎市・芦屋市・東灘区・伊丹市・大阪市、特にJR甲子園口・JR尼崎のエリアで不動産を「売る」・「貸す」・「リフォーム」をご検討の方は、是非、関西ネット不動産にご相談下さい。
■高く売る・早く売る・広告しないで売却・こっそり売却・高く買い取りなどのご要望にもお応え致します。
■取り扱い物件は、新築住宅(戸建)・中古住宅(戸建)・マンション・土地・借地等です。また相続関係・債務整理・任意売却・住宅ローン返済にお困りの方も、弊社売却専門サイトをご覧下さい→西宮不動産売却ナビはこちら
■私の不動産いくら? 無料査定お気軽にご相談下さい。

タカセ不動産 関西ネットゴルフ 関西ネットゴルフ 堀口税理士事務所