全ての一戸建て・マンション・土地・収益物件・賃貸物件の売却購入情報|関西ネット不動産

西宮市、尼崎市、伊丹市、芦屋市、宝塚市の売買仲介(ご売却・ご購入)、査定、賃貸仲介、賃貸管理は関西ネット不動産へ

西宮店0798-31-0119、尼崎店06-4950-6311、北大阪店072-737-4787、大阪南森町店06-6360-4511、新大阪店06-6152-7878

ご相談・お問い合わせ無料!(営業時間 9:00〜18:00 定休日:火曜日、水曜日)

TOP > 物件一覧

関西ネットリフォーム 空家相続センターオープンハウス お客様の声 採用情報

販売物件情報
一覧へ戻る

成約済 川西市東畦野山手2丁目中古戸建 ※リフォーム物件 物件ID 3461

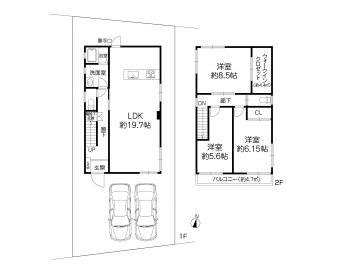
●リフォーム完工後のお引渡し ●南向きにて陽当たり・通風良好 ●軽量鉄骨造2階建 ●LDK約19.7帖で広々です!

価格 交通 土地面積 建物面積 間取り 築年数
成約済 能勢電鉄妙見線 畦野駅駅 徒歩6分
能勢電鉄妙見線 一の鳥居駅駅 徒歩14分
135.56m² 110.1m² 3LDK 平成9年2月
リフォーム完工でのお引渡し! 南向き 3LDK

リフォーム完工でのお引渡し! 南向き 3LDK

画像

軽量鉄骨造2階建 並列駐車(普通車)2台!

  • リフォーム完工でのお引渡し! 南向き 3LDK

    リフォーム完工でのお引渡し! 南向き 3LDK

  • 並列駐車2台可(普通車)※他に自転車・バイクも可

    並列駐車2台可(普通車)※他に自転車・バイクも可

  • コープうねの 約400m

    コープうねの 約400m

  • セブンイレブン 川西東畦野2丁目店 約350m

    セブンイレブン 川西東畦野2丁目店 約350m

その他ギャラリー

担当者メッセージ
スタッフ画像

谷本 一憲

川西市東畦野山手2丁目の中古戸建オススメポイント!
  • リフォーム完了後のお引渡し!
     住む前に手を加える必要がなく、綺麗な状態で新生活をスタートできます。

  • 信頼のミサワセラミックホーム施工!
     高い耐久性と快適性を誇る設計で、安心して暮らせる住まいです。

  • 南向きで陽当たり良好!
     日当たり抜群で、リビングや寝室が明るく快適な空間に。

  • 広々19.7帖のLDK!
     家族が集まりやすいゆとりのある空間で、インテリアのレイアウトも自由自在。

  • 駅までの道のりほぼ平坦!
     毎日の通勤や通学が負担にならず、子育て世帯やシニア層にも嬉しい環境。

  • 普通車2台分の駐車場完備!
     並列で2台分のスペースがあるため、複数台所有する家庭にも対応可能。

  • 落ち着いた住環境!
     自然豊かなエリアに位置し、静かで穏やかな暮らしが叶います。

  • 便利な生活環境!
     近隣に学校、公園、スーパーなどがあり、子育てや日常の買い物にも便利な立地です。

【周辺環境】

■コープうねの・・・・・・・・・・・・・・・約400m

■サンディ川西山下店・・・・・・・・・・・約1500m

■セブンイレブン川西東畦野2丁目店・・・・・約350m

■ファミリーマート畦野駅前店・・・・・・・・約400m

■サンドラッグ川西うねの店・・・・・・・・・約600m

■ダイレックス(ディスカウントスーパー)※2025年 春オープン予定・・・・約1200m

■川西北郵便局・・・・・・・・・・・・・・・約400m

■関西みらい銀行川西うねの支店・・・・・・・約600m

■スシロー川西山下店・・・・・・・・・・・・約1200m

 

ご家族全員が快適に暮らせる魅力がたっぷり詰まっています!実際に現地でその良さを感じてみませんか?お気軽にお問い合わせいただき、内覧をご予約ください。お待ちしております!

【物件のお問い合わせ】

谷本 一憲(タニモト カズノリ)

TEL:0120-698-398

メール:info@kansai-net.info

リフォームページが拡大リニューアル致しました!
関西ネットリフォームHP
小規模リフォームから全面リノベーションまで、関西ネットリフォームにお任せください。
物件探しからリフォーム・リノベーションまでのワンストップサービスや、賃貸物件の空室対策リフォーム、店舗設計、解体工事まで、幅広くお手伝いさせていただきます。
楽しく、快適に暮らしていただきたいをモットーに、関西ネットリフォームでは真心を込めたリフォームをご提案致します。
こちらのホームページでは施工事例を多数掲載しておりますので是非ご覧ください!

物件情報
物件名 川西市東畦野山手2丁目中古戸建 ※リフォーム物件
所在地 川西市東畦野山手2丁目6-7
交通 能勢電鉄妙見線 畦野駅駅 徒歩6分
能勢電鉄妙見線 一の鳥居駅駅 徒歩14分
価格 成約済
土地面積 135.56m²(41坪)
建物面積 110.1m²(33.3坪)
築年月 平成9年2月
構造 軽量鉄骨造
階数 2階建
方位
間取り 3LDK
設備 洗面・トイレ・浴室 温水洗浄便座/トイレ2カ所/シャワー付き洗面台
キッチン 対面式キッチン
収納 ウォークインクローゼット
バルコニー・庭 南面バルコニー
駐車場 2台分
土地権利 所有権
用途地域 第1種低層住居専用地域
建ぺい率 50%
容積率 100%
接道状況 南側公道幅員約4.6mに約8.1m接道
備考 【リフォーム内容】令和6年12月中旬完工予定 ・1階和室の壁撤去、LDを広げる間取り変更 ・キッチン、ユニットバス、洗面台、トイレ入替、シューズボックス入替 ・全室クロス貼替、クッションフロア貼替(トイレ・洗面室) ・2階間仕切り壁新設 ・雑工事、リペア(補修)工事  ・ハウスクリーニング等
現況 空家
引渡し 相談
取引態様 仲介
小学校区 川西市立東谷小学校
中学校区 川西市立東谷中学校
お問い合わせ
お問い合わせ内容(*)

お名前(*)
フリガナ
メールアドレス(*)
電話番号(*)
FAX番号
その他ご質問・要望など
ご連絡方法の指定(*)
同じエリアの物件
画像

一戸建て

成約済

物件ID 3528

川西市鼓が滝2丁目中古戸建 リフォーム物件

◎敷地143.34㎡(約43.36坪) ◎リフォーム物件にて室内・設備綺麗です!◎南西向きにて陽当たり良好! ◎並列駐車2台可! ◎

所在地:
川西市鼓が滝2丁目6-15
価格 交通 土地面積 建物面積 間取り 築年数
成約済 能勢電鉄 日生中央線  鼓が滝駅 徒歩約8分

143.34m² 100.19m² 4LDK 平成16年4月
画像

一戸建て

成約済

物件ID 3404

川西市東多田2丁目中古戸建 築浅リフォーム物件

◎リフォーム完工後のお引渡しです◎縦列駐車2台可(普通車)◎東向き玄関ですが南側に面するLDKは陽当たり良好です!◎能勢電鉄『鼓滝』駅徒歩約8分です!◎徒歩圏内に商業施設充実!

所在地:
川西市東多田2丁目19-22-2
価格 交通 土地面積 建物面積 間取り 築年数
成約済 能勢電鉄 鼓滝駅 徒歩8分

141.47m² 99.36m² 4LDK 平成28年7月建築
画像

一戸建て

成約済

物件ID 3267

川西市松が丘町中古戸建※リフォーム物件

リフォーム渡しの物件です! 南東向きで陽当たり・通風良好! 駐車場2台可!

価格 交通 土地面積 建物面積 間取り 築年数
成約済 阪急宝塚線 川西能勢口駅 徒歩約18分
能勢電鉄 滝山駅 徒歩約19分
JR福知山線 川西池田駅 徒歩25分
188.52m² 129.69m² 5LDK+N 2002年12月
画像

一戸建て

成約済

物件ID 2813

川西市錦松台テラスハウス

駐車スペース1台分あり!2017年に室内リフォーム済みで室内綺麗です!

所在地:
川西市錦松台29-16
価格 交通 土地面積 建物面積 間取り 築年数
成約済 阪急宝塚線 川西能勢口駅 バス9分 徒歩西多田停5分

69.99m² 70.47m² 4DK 1988年3月
画像

一戸建て

成約済

物件ID 2885

川西市清和台西4丁目中古戸建

土地面積約62坪!前面道路広々約7.7mで採光・通風良好!

所在地:
川西市清和台西4丁目3-75
価格 交通 土地面積 建物面積 間取り 築年数
成約済 阪急宝塚線 川西能勢口駅 バス14分 徒歩清和台四丁目停9分

207.04m² 120.06m² 4LDK 1982年8月

■西宮市・尼崎市・芦屋市・東灘区・伊丹市・大阪市、特にJR甲子園口・JR尼崎のエリアで不動産を「売る」・「貸す」・「リフォーム」をご検討の方は、是非、関西ネット不動産にご相談下さい。
■高く売る・早く売る・広告しないで売却・こっそり売却・高く買い取りなどのご要望にもお応え致します。
■取り扱い物件は、新築住宅(戸建)・中古住宅(戸建)・マンション・土地・借地等です。また相続関係・債務整理・任意売却・住宅ローン返済にお困りの方も、弊社売却専門サイトをご覧下さい→西宮不動産売却ナビはこちら
■私の不動産いくら? 無料査定お気軽にご相談下さい。

タカセ不動産 関西ネットゴルフ 関西ネットゴルフ 堀口税理士事務所