全ての一戸建て・マンション・土地・収益物件・賃貸物件の売却購入情報|関西ネット不動産

西宮市、尼崎市、伊丹市、芦屋市、宝塚市の売買仲介(ご売却・ご購入)、査定、賃貸仲介、賃貸管理は関西ネット不動産へ

西宮店0798-31-0119、尼崎店06-4950-6311、北大阪店072-737-4787、大阪南森町店06-6360-4511、新大阪店06-6152-7878

ご相談・お問い合わせ無料!(営業時間 9:00〜18:00 定休日:火曜日、水曜日)

TOP > 物件一覧

関西ネットリフォーム 空家相続センターオープンハウス お客様の声 採用情報

販売物件情報
一覧へ戻る

成約済 甲風園3丁目中古戸建 物件ID 693

希少な二世帯住宅!西宮北口駅徒歩11分!

価格 交通 土地面積 建物面積 間取り 築年数
成約済 阪急神戸線 西宮北口駅 徒歩11分
阪急今津線 門戸厄神駅 徒歩5分
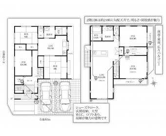
169.12m² 159.83m² 3LDK+2LDK 平成17年11月
南西角地 前面道路もすっきり

南西角地 前面道路もすっきり

  • リビング

    リビング

  • キッチン

    キッチン

  • 1世帯変更プラン

    1世帯変更プラン

  • バスルーム

    バスルーム

その他ギャラリー

担当者メッセージ
スタッフ画像

松見 努

担当者詳細

人気の 西宮北口エリア

土地約51坪付の一戸建て物件が

登場しました!!

 

■阪急「西宮北口」駅 徒歩11分

■阪急「門戸厄神」駅 徒歩5分

 

希少な二世帯住宅!!

★1世帯への変更プランもあります!

(変更費用は200万円税込)

※内容次第では変更費用を下げることも可能です!!

 

土地面積 約 51.1坪

 南西の角地で、前面道路もすっきり5m!!

建物面積 約 159.83平米

 

建築年月日も平成17年11月と築浅です!

駐車スペースも並列で2台完備!!

 

◎2Fリビングは勾配天井で解放感と明るさ抜群

◎太陽光ソーラーシステム完備

◎1F世帯はエコキュートを利用

◎とにかく豊富な収納量

【シューズクローク・玄関クローク・

大型ウォークインCL・廊下収納・

ダイニング収納・ロフト】

 

 

小学校区も大変人気の

・高木小学校

・瓦木中学校

 

【周辺施設】

・いかりスーパー 約280m

・万代 約300m

・阪急西宮ガーデンズ 約1100m

・高木小学校 約430m

・瓦木中学校 約750m

 

リフォームページが拡大リニューアル致しました!
関西ネットリフォームHP
小規模リフォームから全面リノベーションまで、関西ネットリフォームにお任せください。
物件探しからリフォーム・リノベーションまでのワンストップサービスや、賃貸物件の空室対策リフォーム、店舗設計、解体工事まで、幅広くお手伝いさせていただきます。
楽しく、快適に暮らしていただきたいをモットーに、関西ネットリフォームでは真心を込めたリフォームをご提案致します。
こちらのホームページでは施工事例を多数掲載しておりますので是非ご覧ください!

物件情報
物件名 甲風園3丁目中古戸建
所在地 西宮市甲風園3丁目12-20
交通 阪急神戸線 西宮北口駅 徒歩11分
阪急今津線 門戸厄神駅 徒歩5分
価格 成約済
土地面積 169.12m²(51.15坪)
建物面積 159.83m²(48.34坪)
築年月 平成17年11月
構造 木造
階数 2階建
方位
間取り 3LDK+2LDK
設備 洗面・トイレ・浴室 温水洗浄便座/トイレ2カ所/シャワー付き洗面台/追い炊き/浴室乾燥機
キッチン システムキッチン/対面式キッチン/食器洗浄乾燥機/浄水器
収納 ウォークインクローゼット
その他設備 床暖房/TVモニター付きインターホン
バルコニー・庭 二面バルコニー/南面バルコニー
駐車場 駐車スペース2台分あり
土地権利 所有権
用途地域 第1種低層住居専用地域
建ぺい率 50%
容積率 100%
接道状況 南側 幅員約5m 公道/ 西側 幅員 約5m 公道
現況 空家
引渡し 相談
取引態様 専属専任
小学校区 高木小学校
中学校区 瓦木中学校
周辺地図

大きな地図を見る

※物件の周辺イメージを表すものであり、実際の物件とは異なる場合がございます。

お問い合わせ
お問い合わせ内容(*)

お名前(*)
フリガナ
メールアドレス(*)
電話番号(*)
FAX番号
その他ご質問・要望など
ご連絡方法の指定(*)
同じエリアの物件
画像

一戸建て

成約済

物件ID 3454

西宮市満池谷町中古戸建 リフォーム物件

◎価格変更! ●建物診断済 耐震補強工事実施済のリフォーム物件!●南東角地にて陽当たり・通風良好です! ペットと暮らせる設備有り(グルーミング有り)●駐車場は並列駐車2台可!●1台はハイルーフ車・SUV車・ワンボックス可、もう1台は普通車(車高は約2mまで)!

所在地:
西宮市満池谷町1-1
価格 交通 土地面積 建物面積 間取り 築年数
成約済 阪急神戸線 夙川駅 徒歩13分
阪急甲陽線 苦楽園口駅 徒歩14分分
245.26m² 168.2m² 3LDK+畳コーナー+WIC+N(納戸)+パントリー 1989年3月建築
画像

一戸建て

成約済

物件ID 3233

西宮市仁川百合野町中古戸建 ※リフォーム物件

南西向き 平成11年4月建築 木造3階建 3LDK 閑静な住宅街 駐車スペース1台~2台(車種制限有り)

所在地:
西宮市仁川百合野町4-48
価格 交通 土地面積 建物面積 間取り 築年数
成約済 阪急今津線 仁川 徒歩23分

124.17m² 109.82m² 3LDK 1999年4月

画像

一戸建て

成約済

物件ID 3476

西宮市甲子園口3丁目新築戸建(完成済)

◎JR甲子園口駅までフラットアクセス徒歩約4分 ◎前面道路公道幅員約4.9m ◎耐震等級2、断熱等級4取得 ◎床暖房、エコジョーズ、ミストカワック付

価格 交通 土地面積 建物面積 間取り 築年数
成約済 JR神戸線 甲子園口駅 徒歩4分

63.05m² 99.59m² 4LDK 2024年10月
画像

一戸建て

成約済

物件ID 3492

西宮市甲子園口2丁目中古戸建

JR甲子園口駅徒歩約8分!◎築浅物件(築約14年)◎駅までフラットアクセス! ◎商業施設充実!

所在地:
西宮市甲子園口2丁目
価格 交通 土地面積 建物面積 間取り 築年数
成約済 JR神戸線 甲子園口駅駅 徒歩8分
阪神本線 甲子園駅 徒歩24分
108.01m² 110.49m² 3LDK 2011年8月
画像

一戸建て

成約済

物件ID 3393

西宮市段上町3丁目新築戸建

所在地:
西宮市段上町3丁目2番24号
価格 交通 土地面積 建物面積 間取り 築年数
成約済 阪急今津線 仁川駅 徒歩12分
阪急今津線 甲東園駅 徒歩12分
58.52m² 97.55m² 3LDK 2024年11月

■西宮市・尼崎市・芦屋市・東灘区・伊丹市・大阪市、特にJR甲子園口・JR尼崎のエリアで不動産を「売る」・「貸す」・「リフォーム」をご検討の方は、是非、関西ネット不動産にご相談下さい。
■高く売る・早く売る・広告しないで売却・こっそり売却・高く買い取りなどのご要望にもお応え致します。
■取り扱い物件は、新築住宅(戸建)・中古住宅(戸建)・マンション・土地・借地等です。また相続関係・債務整理・任意売却・住宅ローン返済にお困りの方も、弊社売却専門サイトをご覧下さい→西宮不動産売却ナビはこちら
■私の不動産いくら? 無料査定お気軽にご相談下さい。

タカセ不動産 関西ネットゴルフ 関西ネットゴルフ 堀口税理士事務所