モンマール苦楽園(オーナーチェンジ)|関西ネット不動産

西宮市、尼崎市、伊丹市、芦屋市、宝塚市の売買仲介(ご売却・ご購入)、査定、賃貸仲介、賃貸管理は関西ネット不動産へ

西宮店0798-31-0119、尼崎店06-4950-6311、北大阪店072-737-4787、大阪南森町店06-6360-4511、新大阪店06-6152-7878

ご相談・お問い合わせ無料!(営業時間 9:00〜18:00 定休日:火曜日、水曜日)

TOP物件一覧 > モンマール苦楽園(オーナーチェンジ)

関西ネットリフォーム 空家相続センターオープンハウス お客様の声 採用情報

販売物件情報
一覧へ戻る

新着 モンマール苦楽園(オーナーチェンジ) 物件ID 3620

\\投資用物件をお探しの方におすすめ!// 阪急甲陽線「苦楽園口」駅徒歩約12分! 現在、賃貸中!利回り約5.52%のオーナーチェンジ物件♪

価格 利回り 現状 交通 築年数 引き渡し
14,800万円(税込) 5.52% 賃貸中(満室) 阪急甲陽線 苦楽園口駅駅 徒歩10分
阪急甲陽線 夙川駅駅 徒歩19分
1989年7月 相談
担当者メッセージ
スタッフ画像

東 優翔

■現在、賃貸中!初めて不動産投資を始められる方におすすめ!・月額総賃料681,135円
・年収8,173,620円・表面利回り約5.52%
■阪急甲陽線「苦楽園口」駅圏内に位置し、西宮北口・大阪方面へのアクセスもスムーズ。人の流れが見込める立地で、事務所・店舗テナントにも適した収益性の高い物件です。
■苦楽園の落ち着いた街並みに位置するモンマール苦楽園。事務所・店舗が入居する収益物件で、安定した賃料収入が期待できます。周辺環境と立地の良さも魅力です!

こんな方におすすめ!☆
■安定した収益を重視する方
賃貸需要が高いエリアなので、長期的な家賃収入が期待できます。
■不動産投資が初めての方
現在賃貸中なので、ご購入直後から家賃収入

リフォームページが拡大リニューアル致しました!
関西ネットリフォームHP
小規模リフォームから全面リノベーションまで、関西ネットリフォームにお任せください。
物件探しからリフォーム・リノベーションまでのワンストップサービスや、賃貸物件の空室対策リフォーム、店舗設計、解体工事まで、幅広くお手伝いさせていただきます。
楽しく、快適に暮らしていただきたいをモットーに、関西ネットリフォームでは真心を込めたリフォームをご提案致します。
こちらのホームページでは施工事例を多数掲載しておりますので是非ご覧ください!

物件情報
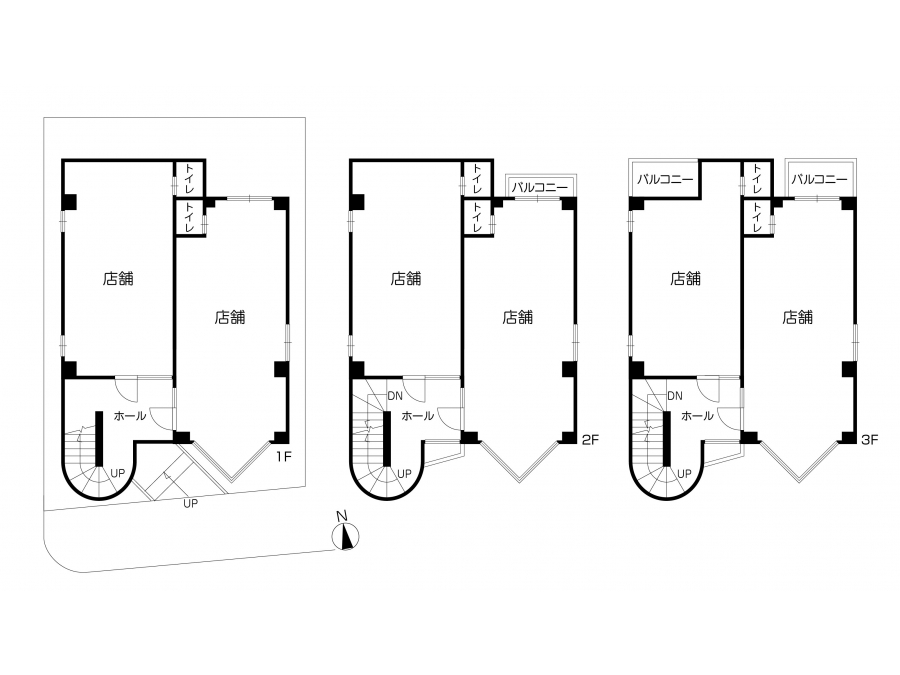
物件名 モンマール苦楽園(オーナーチェンジ)
所在地 西宮市樋之池町12-5
交通 阪急甲陽線 苦楽園口駅駅 徒歩10分
阪急甲陽線 夙川駅駅 徒歩19分
価格 14,800万円(税込)
建物面積 200.54m²
土地面積 109.3m²
築年月 1989年7月
構造 鉄筋コンクリート造
階数 3階建
用途地域 第1種中高層住居専用地域
建ぺい率 60%
容積率 200%
総戸数 7戸
備考 ※現在、月額合計賃料681,135円にて賃貸中。※第3種高度地区
現況 賃貸中(満室)
引渡し 相談
取引態様 専属専任
物件種別 収益物件
利回り 5.52%
ご相談・お問い合わせ
お名前(*)
フリガナ
郵便番号 -
都道府県
市区郡町名・番地
建物名
メールアドレス(*)
電話番号(*)
FAX番号
お問い合わせ内容(*)

その他、ご要望やコメントなどございましたら入力下さい。

ご連絡方法の指定(*)
同じエリアの物件
画像

収益物件

物件ID 3594

西宮市五月ケ丘中古戸建(オーナーチェンジ物件)

阪急甲陽線「甲陽園駅」徒歩圏内! 堅実運用に最適!オーナーチェンジ物件♪

所在地:
西宮市五月ヶ丘9-13
価格 利回り 現状 交通 築年数 引き渡し
580万円(税込) 約12.7% 賃貸中 阪急甲陽線 甲陽園駅 徒歩約13分

昭和51年9月 相談
画像

収益物件

物件ID 3592

興信ビル 3階部分(オーナーチェンジ物件)

\\JR東海道本線甲子園口駅徒歩約1 分!安定収益が見込めるオーナーチェンジ物件!//

所在地:
西宮市二見町3-20
価格 利回り 現状 交通 築年数 引き渡し
460万円(税込) 約10.1% 賃貸中 JR神戸線 甲子園口駅 徒歩約1分
阪急神戸線 西宮北口駅 徒歩約25分
昭和34年4月 相談
画像

収益物件

物件ID 1952

クレアコーポ

一棟収益マンション!利回り約8.0%

所在地:
西宮市青木町12-9
価格 利回り 現状 交通 築年数 引き渡し
7,880万円 表面利回り約8.0%  賃貸中 阪急神戸線 西宮北口駅 徒歩11分
JR神戸線 西宮駅 徒歩10分
昭和48年1月 相談

■西宮市・尼崎市・芦屋市・東灘区・伊丹市・大阪市、特にJR甲子園口・JR尼崎のエリアで不動産を「売る」・「貸す」・「リフォーム」をご検討の方は、是非、関西ネット不動産にご相談下さい。
■高く売る・早く売る・広告しないで売却・こっそり売却・高く買い取りなどのご要望にもお応え致します。
■取り扱い物件は、新築住宅(戸建)・中古住宅(戸建)・マンション・土地・借地等です。また相続関係・債務整理・任意売却・住宅ローン返済にお困りの方も、弊社売却専門サイトをご覧下さい→西宮不動産売却ナビはこちら
■私の不動産いくら? 無料査定お気軽にご相談下さい。

タカセ不動産 関西ネットゴルフ 関西ネットゴルフ 堀口税理士事務所