全ての一戸建て・マンション・土地・収益物件・賃貸物件の売却購入情報|関西ネット不動産

西宮市、尼崎市、伊丹市、芦屋市、宝塚市の売買仲介(ご売却・ご購入)、査定、賃貸仲介、賃貸管理は関西ネット不動産へ

西宮店0798-31-0119、尼崎店06-4950-6311、北大阪店072-737-4787、大阪南森町店06-6360-4511、新大阪店06-6152-7878

ご相談・お問い合わせ無料!(営業時間 9:00〜18:00 定休日:火曜日、水曜日)

TOP > 物件一覧

関西ネットリフォーム 空家相続センターオープンハウス お客様の声 採用情報

販売物件情報
一覧へ戻る

成約済 ローズコーポ千里C棟 物件ID 2841

4階部分の南向き!リフォーム完成致しました!

価格 交通 専有面積 間取り 階数 築年数
成約済 阪急千里線 南千里駅 バス13分 徒歩五月が丘停3分
JR神戸線 吹田駅 バス17分 徒歩五月が丘停3分
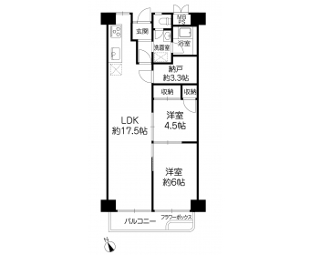
66m² 2LDK 9 1973年1月
緑の多い静かな住環境♪

緑の多い静かな住環境♪

画像

全面リフォームが完了しました!

  • LDKは約17.5帖!南向きで明るい空間です!

    LDKは約17.5帖!南向きで明るい空間です!

  • システムキッチンも新品です!

    システムキッチンも新品です!

  • 追い炊き機能付きの浴室です!

    追い炊き機能付きの浴室です!

  • 玄関には下駄箱もあります

    玄関には下駄箱もあります

その他ギャラリー

担当者メッセージ
スタッフ画像

三澤 幸司

担当者詳細

ローズコーポ千里C棟

 

4階部分の南向きのお部屋です!

採光・通風良好♪

室内は全面リフォーム完成致しました!

ピカピカにしてからのお引渡しですので、

しばらく大掛かりなリフォームは必要ありませんし、

安心してご購入いただけるのがリフォーム済み

物件の魅力の一つです♪

分電盤や給湯器、追い炊き配管など

次の入居者さんの生活が快適になるように、

弊社のリフォーム事業部がご提案する

リフォームです!

《リフォーム内容》

・システムキッチン交換

・ユニットバス交換

・洗面台交換

・トイレ交換

・クロス張替え

・CF張替え

・フロアタイル貼り

・畳表替え

・襖張替え

・網戸張替え

・分電盤交換

・給湯器交換

・追い炊き配管工事

・3点給湯工事

・塗装工事

・洗濯パン交換 など実施します!

 

周辺環境は公園など、緑も多く、

落ち着いた静かな住環境です。

駅から少し距離は離れますが、

朝の通勤時間帯などはバス便も多く

運行されていますので、通勤等も

そんなに苦になる距離ではないと思います!

●阪急千里線

「南千里」駅 バス乗車約13分

五月が丘停 徒歩約3分

●JR神戸線

「吹田」駅 バス乗車約17分

五月が丘停 徒歩約3分

 

 

南千里駅から大阪梅田までは乗車約25分で到着!

吹田駅から大阪までは乗車約9分で到着しますので、

通勤のアクセスも便利!

大阪市内までのアクセスも便利で、

住環境も良いので、子育て世代の

ファミリーさんから、ご年配の方まで

幅広い世代から愛されているエリアです。

太陽の塔で有名な万博公園まで約2,400m。

万博公園はエキスポシティとして生まれ変わっており、

たくさんの商業施設、水族館、映画館、ららぽーとなどが

集まった総合複合施設になっています。

万博公園でのんびり過ごすことも出来ますし、

お買物や遊びの場としても利用できる

魅力的な場所になっております。

岸辺駅周辺も再開発が行われており、

昨年にビエラ岸辺健都という複合商業施設も

オープン、市民病院も移転しました。

 

■お部屋は4階部分の南向き!

 採光・通風良好なお部屋です!

しっかりと光が入るリビングは、

午前中からしっかり明るくて、

非常に気持ちの良い空間です!

約3.3帖の納戸がありますので、

収納もしっかりと出来ますよ!

LDKも広々約17.5帖!

水廻り等もリフォームで全て新品になりますので、

気持ちよく新生活をスタートして頂けます!

 

 

周辺にはお買物施設もありますので、

日常生活も便利です!

【周辺施設】

●生活施設●

・ローソン五月ケ丘東店 約350m

・ココカラファイン千里山田西店 約290m

・フレスコ山田西店 約400m

・ジャパン吹田店 約400m

・EXPO CITY 約2.4km

・コープ吹田 約1000m

 

●飲食店●

・かごの屋吹田五月が丘店 約280m

・すき家吹田五月が丘店 約350m

・だし自慢うどん屋柏本 約350m

・ヒロコーヒー千里五月が丘店 約350m

 

●教育施設●

・あびにょん保育園 約500m

・東佐井寺幼稚園 約600m

・東佐井寺小学校 約600m

・佐井寺中学校 約650m

・吹田ポッポ保育園五月が丘校 約1000m

 

●その他●

・紫金山公園 約280m

・コナミスポーツクラブ南千里 約500m

・関西みらい銀行千里山田支店 約450m

・協和会病院 約1200m

 

お気軽にお問い合わせください!

担当:三澤

0120-698-598

 

リフォームページが拡大リニューアル致しました!
関西ネットリフォームHP
小規模リフォームから全面リノベーションまで、関西ネットリフォームにお任せください。
物件探しからリフォーム・リノベーションまでのワンストップサービスや、賃貸物件の空室対策リフォーム、店舗設計、解体工事まで、幅広くお手伝いさせていただきます。
楽しく、快適に暮らしていただきたいをモットーに、関西ネットリフォームでは真心を込めたリフォームをご提案致します。
こちらのホームページでは施工事例を多数掲載しておりますので是非ご覧ください!

物件情報
物件名 ローズコーポ千里C棟
所在地 吹田市五月が丘東2C
交通 阪急千里線 南千里駅 バス13分 徒歩五月が丘停3分
JR神戸線 吹田駅 バス17分 徒歩五月が丘停3分
価格 成約済
専有面積 66m²(19.96坪)
バルコニー面積 6.3m²(1.9坪)
築年月 1973年1月
構造 鉄筋コンクリート造
階数 9階建
所在階 4階部分
間取り 2LDK
設備 洗面・トイレ・浴室 温水洗浄便座/シャワー付き洗面台/追い炊き
キッチン システムキッチン
収納 納戸
その他設備 TVモニター付きインターホン/エレベーター
バルコニー・庭 南面バルコニー
ペット可 不可
総戸数 89戸
管理費 4,470円
修繕積立費 10,430円
現況 空家
引渡し 相談
取引態様 専属専任
小学校区 東佐井寺小学校 約600m
中学校区 佐井寺中学校 約650m
お問い合わせ
お問い合わせ内容(*)

お名前(*)
フリガナ
メールアドレス(*)
電話番号(*)
FAX番号
その他ご質問・要望など
ご連絡方法の指定(*)
同じエリアの物件
画像

マンション

成約済

物件ID 3276

アールヴェール緑地公園

所在地:
吹田市春日1丁目4-35
価格 交通 専有面積 間取り 所在階 築年数
成約済 北大阪急行南北線 緑地公園駅 徒歩7分

73.08m² 3LDK 10 平成15年3月
画像

マンション

成約済

物件ID 3064

フォレストシティ千里丘D棟

延床面積80.18㎡の広々3LDK!収納たっぷり!ペット飼育可!

所在地:
吹田市千里丘西24-4
価格 交通 専有面積 間取り 所在階 築年数
成約済 JR神戸線 千里丘駅 徒歩17分

80.18m² 3LDK 4 2002年2月
画像

マンション

成約済

物件ID 3035

メゾン千里丘E棟

4階部分の南東角部屋!ゆったりとした3SLDKです!

所在地:
吹田市新芦屋上27-E
価格 交通 専有面積 間取り 所在階 築年数
成約済 JR東海道本線 千里丘駅 徒歩19分
大阪モノレール 宇野辺駅 徒歩12分
78.61m² 3SLDK 4 1978年9月
画像

マンション

成約済

物件ID 3028

府公社千里竹見台団地

駅から2分の好立地!3階部分の南向き!

所在地:
吹田市竹見台4丁目8-A4
価格 交通 専有面積 間取り 所在階 築年数
成約済 北大阪急行線 桃山台駅 徒歩2分

67.56m² 3DK 3 1971年10月
画像

マンション

成約済

物件ID 2960

シュロス関大前

ペット飼育可、南東角部屋の最上階のお部屋です!

所在地:
吹田市円山町6-27
価格 交通 専有面積 間取り 所在階 築年数
成約済 阪急千里線 関大前駅 徒歩3分

86.96m² 4LDK 4 昭和54年8月

■西宮市・尼崎市・芦屋市・東灘区・伊丹市・大阪市、特にJR甲子園口・JR尼崎のエリアで不動産を「売る」・「貸す」・「リフォーム」をご検討の方は、是非、関西ネット不動産にご相談下さい。
■高く売る・早く売る・広告しないで売却・こっそり売却・高く買い取りなどのご要望にもお応え致します。
■取り扱い物件は、新築住宅(戸建)・中古住宅(戸建)・マンション・土地・借地等です。また相続関係・債務整理・任意売却・住宅ローン返済にお困りの方も、弊社売却専門サイトをご覧下さい→西宮不動産売却ナビはこちら
■私の不動産いくら? 無料査定お気軽にご相談下さい。

タカセ不動産 関西ネットゴルフ 関西ネットゴルフ 堀口税理士事務所