全ての一戸建て・マンション・土地・収益物件・賃貸物件の売却購入情報|関西ネット不動産

西宮市、尼崎市、伊丹市、芦屋市、宝塚市の売買仲介(ご売却・ご購入)、査定、賃貸仲介、賃貸管理は関西ネット不動産へ

西宮店0798-31-0119、尼崎店06-4950-6311、北大阪店072-737-4787、大阪南森町店06-6360-4511、新大阪店06-6152-7878

ご相談・お問い合わせ無料!(営業時間 9:00〜18:00 定休日:火曜日、水曜日)

TOP > 物件一覧

関西ネットリフォーム 空家相続センターオープンハウス お客様の声 採用情報

販売物件情報
一覧へ戻る

成約済 西宮市大屋町中古戸建 物件ID 2745

人気の西宮北口エリアに希少な中古戸建が登場!

価格 交通 土地面積 建物面積 間取り 築年数
成約済 阪急神戸線 西宮北口駅 徒歩13分
JR神戸線 甲子園口駅 徒歩16分
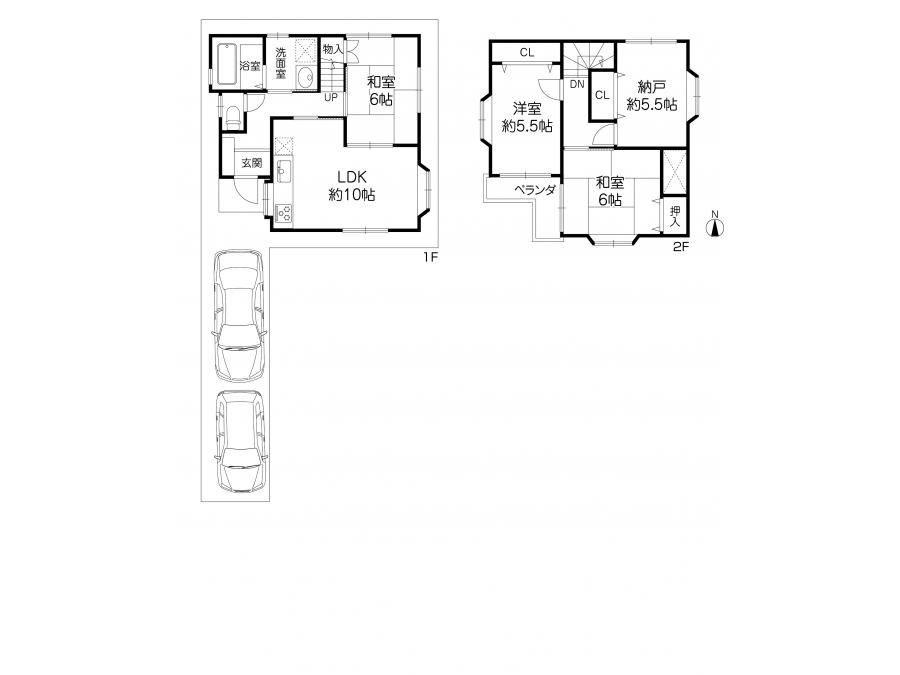
93.02m² 79.24m² 4LDK 2000年7月
人気の西宮北口エリア!

人気の西宮北口エリア!

画像

縦列2台駐車可の駐車スペースあり!

  • 2000年7月建築です

    2000年7月建築です

  • 阪急西宮ガーデンズ 約600m

    阪急西宮ガーデンズ 約600m

  • JR甲子園口駅 徒歩約16分

    JR甲子園口駅 徒歩約16分

  • 西宮北口駅 徒歩約13分

    西宮北口駅 徒歩約13分

その他ギャラリー

担当者メッセージ
スタッフ画像

更屋 雄宇

西宮市大屋町中古戸建

 

住みたい街に常に上位にランクイン

している、西宮市の人気エリアに

2000年建築の中古戸建が登場しました!

 

■阪急神戸線

 「西宮北口」駅 徒歩約13分

■JR神戸線

 「甲子園口」駅 徒歩約16分

 

周辺はフラットな道のりで、自転車や

ベビーカーを押しての移動もラクラク。

ご存じのとおり、近くには平日も

たくさんのお客様で賑わう

阪急西宮ガーデンズもあり、

忙しい時も気軽にお買い物が楽しめます。

西宮北口駅周辺にはその他にも多数の

おしゃれな飲食店、金融機関、医療施設等があり

とても便利な生活環境が魅力の一つでもあります。

特に医療施設に関してはJR西宮駅・北口なでしこビル・プレラ

エディオン前のビルにも各種医院が入っており、

その他徒歩圏内にも医院があります。

 

■土地面積 93.02㎡(約28.14坪)

■延床面積 79.24㎡

 1階:40.67㎡ 2階:38.57㎡

 

■2000年7月建築

■縦列になりますが2台駐車可能の

 駐車スペースあり!

■前面道路は約5.9mの広さ!

 奥は突き当りのような立地になっておりますので、

 不特定多数の方が行き来するような道路ではありません。

 小さいお子さんが遊んでいても安心ですし、

 見かけない方がいたらすぐにわかると思いますので

 セキュリティー面でも安心です!

■各居室に収納あり!収納も豊富です!

 

 

【周辺施設】

・阪急西宮ガーデンズ 約600m

・マクドナルド山手幹線西宮店 約180m

・瓦木北保育所 約170m

・マザーシップ西宮北口こども園 約230m

・阪急幼稚園 約500m

・ハードオフ西宮店 約230m

・ジャスパー動物病院 約400m

・瓦木支所 約450m

・セブンイレブン西宮中島町店 約300m

・ファミリーマート西宮大屋町店 約450m

・牛庵西宮店 約450m

・洋麺屋五右衛門西宮店 約450m

・たけふく 約350m

・飯田整形外科 約350m

・こじま小児科 約350m

・吉田歯科 約350m

・コナミスポーツクラブ本店西宮 約1300m

 

お気軽にお問い合わせください!

担当:さらや

0120-698-398

リフォームページが拡大リニューアル致しました!
関西ネットリフォームHP
小規模リフォームから全面リノベーションまで、関西ネットリフォームにお任せください。
物件探しからリフォーム・リノベーションまでのワンストップサービスや、賃貸物件の空室対策リフォーム、店舗設計、解体工事まで、幅広くお手伝いさせていただきます。
楽しく、快適に暮らしていただきたいをモットーに、関西ネットリフォームでは真心を込めたリフォームをご提案致します。
こちらのホームページでは施工事例を多数掲載しておりますので是非ご覧ください!

物件情報
物件名 西宮市大屋町中古戸建
所在地 西宮市大屋町2-24
交通 阪急神戸線 西宮北口駅 徒歩13分
JR神戸線 甲子園口駅 徒歩16分
価格 成約済
土地面積 93.02m²(28.13坪)
建物面積 79.24m²(23.97坪)
築年月 2000年7月
構造 木造
階数 2階建
方位
間取り 4LDK
設備 洗面・トイレ・浴室 温水洗浄便座/浴室乾燥機
キッチン システムキッチン
その他設備 TVモニター付きインターホン
バルコニー・庭 南面バルコニー
駐車場 あり 縦列2台駐車可能
土地権利 所有権
用途地域 第1種住居地域
建ぺい率 60%
容積率 200%
接道状況 南側公道幅員約5.9mに約2.3m接面
現況 所有者居住中
引渡し 相談
取引態様 専属専任
小学校区 深津小学校 約980m
中学校区 深津中学校 約1000m
お問い合わせ
お問い合わせ内容(*)

お名前(*)
フリガナ
メールアドレス(*)
電話番号(*)
FAX番号
その他ご質問・要望など
ご連絡方法の指定(*)
同じエリアの物件
画像

一戸建て

成約済

物件ID 3454

西宮市満池谷町中古戸建 リフォーム物件

◎価格変更! ●建物診断済 耐震補強工事実施済のリフォーム物件!●南東角地にて陽当たり・通風良好です! ペットと暮らせる設備有り(グルーミング有り)●駐車場は並列駐車2台可!●1台はハイルーフ車・SUV車・ワンボックス可、もう1台は普通車(車高は約2mまで)!

所在地:
西宮市満池谷町1-1
価格 交通 土地面積 建物面積 間取り 築年数
成約済 阪急神戸線 夙川駅 徒歩13分
阪急甲陽線 苦楽園口駅 徒歩14分分
245.26m² 168.2m² 3LDK+畳コーナー+WIC+N(納戸)+パントリー 1989年3月建築
画像

一戸建て

成約済

物件ID 3233

西宮市仁川百合野町中古戸建 ※リフォーム物件

南西向き 平成11年4月建築 木造3階建 3LDK 閑静な住宅街 駐車スペース1台~2台(車種制限有り)

所在地:
西宮市仁川百合野町4-48
価格 交通 土地面積 建物面積 間取り 築年数
成約済 阪急今津線 仁川 徒歩23分

124.17m² 109.82m² 3LDK 1999年4月

画像

一戸建て

成約済

物件ID 3476

西宮市甲子園口3丁目新築戸建(完成済)

◎JR甲子園口駅までフラットアクセス徒歩約4分 ◎前面道路公道幅員約4.9m ◎耐震等級2、断熱等級4取得 ◎床暖房、エコジョーズ、ミストカワック付

価格 交通 土地面積 建物面積 間取り 築年数
成約済 JR神戸線 甲子園口駅 徒歩4分

63.05m² 99.59m² 4LDK 2024年10月
画像

一戸建て

成約済

物件ID 3492

西宮市甲子園口2丁目中古戸建

JR甲子園口駅徒歩約8分!◎築浅物件(築約14年)◎駅までフラットアクセス! ◎商業施設充実!

所在地:
西宮市甲子園口2丁目
価格 交通 土地面積 建物面積 間取り 築年数
成約済 JR神戸線 甲子園口駅駅 徒歩8分
阪神本線 甲子園駅 徒歩24分
108.01m² 110.49m² 3LDK 2011年8月
画像

一戸建て

成約済

物件ID 3393

西宮市段上町3丁目新築戸建

所在地:
西宮市段上町3丁目2番24号
価格 交通 土地面積 建物面積 間取り 築年数
成約済 阪急今津線 仁川駅 徒歩12分
阪急今津線 甲東園駅 徒歩12分
58.52m² 97.55m² 3LDK 2024年11月

■西宮市・尼崎市・芦屋市・東灘区・伊丹市・大阪市、特にJR甲子園口・JR尼崎のエリアで不動産を「売る」・「貸す」・「リフォーム」をご検討の方は、是非、関西ネット不動産にご相談下さい。
■高く売る・早く売る・広告しないで売却・こっそり売却・高く買い取りなどのご要望にもお応え致します。
■取り扱い物件は、新築住宅(戸建)・中古住宅(戸建)・マンション・土地・借地等です。また相続関係・債務整理・任意売却・住宅ローン返済にお困りの方も、弊社売却専門サイトをご覧下さい→西宮不動産売却ナビはこちら
■私の不動産いくら? 無料査定お気軽にご相談下さい。

タカセ不動産 関西ネットゴルフ 関西ネットゴルフ 堀口税理士事務所