全ての一戸建て・マンション・土地・収益物件・賃貸物件の売却購入情報|関西ネット不動産

西宮市、尼崎市、伊丹市、芦屋市、宝塚市の売買仲介(ご売却・ご購入)、査定、賃貸仲介、賃貸管理は関西ネット不動産へ

西宮店0798-31-0119、尼崎店06-4950-6311、北大阪店072-737-4787、大阪南森町店06-6360-4511、新大阪店06-6152-7878

ご相談・お問い合わせ無料!(営業時間 9:00〜18:00 定休日:火曜日、水曜日)

TOP > 物件一覧

関西ネットリフォーム 空家相続センターオープンハウス お客様の声 採用情報

販売物件情報
一覧へ戻る

成約済 大阪市帝塚山西二丁目中古戸建 物件ID 2555

住友林業施工の邸宅!南西角地、土地面積約64.37坪!

価格 交通 土地面積 建物面積 間取り 築年数
成約済 南海高野線 帝塚山駅 徒歩3分
南海本線 粉浜駅 徒歩9分
阪堺電軌阪堺線 塚西駅 徒歩4分
248.82m² 136.83m² 4SLDK 1988年12月
外観 住友林業施工の邸宅

外観 住友林業施工の邸宅

画像

住友林業施工の邸宅

  • 南西角地につき採光・通風良好

    南西角地につき採光・通風良好

  • 玄関も広々

    玄関も広々

  • お庭もあります

    お庭もあります

  • 和室8帖

    和室8帖

その他ギャラリー

担当者メッセージ
スタッフ画像

松見 努

担当者詳細

大阪市住吉区帝塚山西二丁目土地

 

帝塚山古墳や文化財級の洋風住宅などが

建ち並ぶ由緒ある住宅地。

聖天山風致地区に指定され、今も敷地の大きな

邸宅が多く存在する憧れの高級住宅地です。

帝塚山学院が近く、その他寺院や教会も多数あります。

 

 ■交通アクセス■

●南海高野線

 「帝塚山」駅 徒歩約3分

●南海本線

 「粉浜」駅 徒歩約9分

●阪堺電軌阪堺線

 「塚西」駅 徒歩約4分

 

難波駅までは乗車約9分

梅田駅までは乗車約30分で

到着しますので、通勤通学も

大変便利な立地です。

 

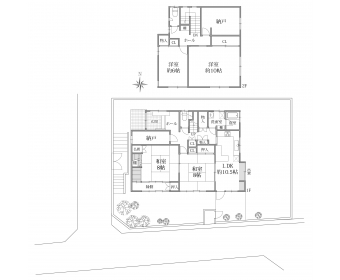
■土地面積 248.82㎡(約75.27坪)

■建物面積 136.83㎡

 1階 86.32㎡  

 2階 50.51㎡

 

土地有効面積は広々とした約64坪。

南西角地につき、採光・通風良好です。

間口も西側は約12m、南側は約17mと

広々としており、実に堂々とした佇まいです。

余裕のある敷地には、広々としたお庭もございます。

建物は住友林業施工の邸宅。

延床面積139.92㎡の広々とした2階建です。

室内は大変丁寧に使用されております。

各居室が大変広々と設計されておりますので、

ゆとりを持った家具の配置ができます。

和室8帖には広々とした縁側があり、

お庭を眺めることができます。

老舗旅館のような雰囲気をご自宅でも味わっていただけます。

お天気の良い日にはお茶でも飲みながら、

縁側でひなたぼっこでもしたいような良い雰囲気です。

玄関には大きな窓もあり、昔ながらの風格と趣がある玄関です。

とっても明るい空間ですが、重厚感もあり、

昔ながらの日本家屋の良さを感じます。

各居室に収納、その他納戸も二か所あり、

収納は大変充実しています。

 

現在は空家になっておりますので

お客様のご都合の良い時に

ゆっくりとご内覧頂けます。

 

【周辺施設】

・東粉浜小学校 約450m

・住吉中学校 約350m

・東粉浜幼稚園 約450m

・セブンイレブン大阪東粉浜1丁目店 約210m

・おおさかパルコープ粉浜店 約500m

・住吉幼稚園 約700m

・ライフ玉出東店 約400m

・玉出幼稚園 約600m

・永和信用金庫玉出支店 約550m

・帝塚山学院 約350m

・大阪住吉町郵便局 約900m

・住吉大社 約1300m

 

お気軽にお問い合わせください。

担当:松見

0120-698-398

リフォームページが拡大リニューアル致しました!
関西ネットリフォームHP
小規模リフォームから全面リノベーションまで、関西ネットリフォームにお任せください。
物件探しからリフォーム・リノベーションまでのワンストップサービスや、賃貸物件の空室対策リフォーム、店舗設計、解体工事まで、幅広くお手伝いさせていただきます。
楽しく、快適に暮らしていただきたいをモットーに、関西ネットリフォームでは真心を込めたリフォームをご提案致します。
こちらのホームページでは施工事例を多数掲載しておりますので是非ご覧ください!

物件情報
物件名 大阪市帝塚山西二丁目中古戸建
所在地 大阪市住吉区帝塚山西2丁目9-9
交通 南海高野線 帝塚山駅 徒歩3分
南海本線 粉浜駅 徒歩9分
阪堺電軌阪堺線 塚西駅 徒歩4分
価格 成約済
土地面積 248.82m²(75.26坪)
建物面積 136.83m²(41.39坪)
築年月 1988年12月
構造 木造
階数 2階建
方位 西
間取り 4SLDK
設備 洗面・トイレ・浴室 温水洗浄便座/トイレ2カ所/シャワー付き洗面台/追い炊き/浴室乾燥機
キッチン システムキッチン/食器洗浄乾燥機
収納 納戸
その他設備 床暖房
バルコニー・庭
駐車場
土地権利 所有権
用途地域 第2種中高層住居専用地域
建ぺい率 40%
容積率 200%
接道状況 西側私道幅員約4mに約12m接面/南側私道幅員約3.5mに約17m接面
現況 空家
引渡し 相談
取引態様 専属専任
小学校区 東粉浜小学校 約450m
中学校区 住吉中学校 約350m
お問い合わせ
お問い合わせ内容(*)

お名前(*)
フリガナ
メールアドレス(*)
電話番号(*)
FAX番号
その他ご質問・要望など
ご連絡方法の指定(*)
同じエリアの物件
画像

一戸建て

成約済

物件ID 3579

大阪市此花区春日出北2丁目中古戸建

所在地:
大阪市此花区春日出北2丁目16-5
価格 交通 土地面積 建物面積 間取り 築年数
成約済 阪神なんば線 千鳥橋駅 徒歩15分
JR桜島線 安治川口駅 徒歩16分
45.79m² 50.83m² 3DK 1981年8月
画像

一戸建て

成約済

物件ID 3513

淀川区加島2丁目テラスハウス

所在地:
大阪府大阪市淀川区加島2丁目2-69
価格 交通 土地面積 建物面積 間取り 築年数
成約済 JR東西線 加島駅駅 徒歩15分

41.03m² 88.65m² 3DK 昭和55年1月
画像

一戸建て

成約済

物件ID 3516

淀川区宮原2丁目店舗付き住宅

所在地:
大阪府大阪市淀川区宮原2丁目5-15
価格 交通 土地面積 建物面積 間取り 築年数
成約済 JR東海道本線 東淀川駅駅 徒歩3分
地下鉄御堂筋線 東三国駅 徒歩4分
40.95m² 134.91m² 4LDK+店舗 昭和48年12月
画像

一戸建て

成約済

物件ID 3386

淀川区塚本6丁目 土地建物

所在地:
大阪市淀川区塚本6丁目4-9
価格 交通 土地面積 建物面積 間取り 築年数
成約済 JR神戸線 塚本駅駅 徒歩7分

138.48m² 151.2m² 6LDK 昭和40年8月
画像

一戸建て

成約済

物件ID 3369

西淀川区大和田4丁目 中古戸建

所在地:
大阪市西淀川区大和田4丁目6-19
価格 交通 土地面積 建物面積 間取り 築年数
成約済 阪神本線 千船駅 徒歩8分
阪神なんば線 出来島駅 徒歩12分
82.41m² 114.56m² 4LDK 平成19年7月築

■西宮市・尼崎市・芦屋市・東灘区・伊丹市・大阪市、特にJR甲子園口・JR尼崎のエリアで不動産を「売る」・「貸す」・「リフォーム」をご検討の方は、是非、関西ネット不動産にご相談下さい。
■高く売る・早く売る・広告しないで売却・こっそり売却・高く買い取りなどのご要望にもお応え致します。
■取り扱い物件は、新築住宅(戸建)・中古住宅(戸建)・マンション・土地・借地等です。また相続関係・債務整理・任意売却・住宅ローン返済にお困りの方も、弊社売却専門サイトをご覧下さい→西宮不動産売却ナビはこちら
■私の不動産いくら? 無料査定お気軽にご相談下さい。

タカセ不動産 関西ネットゴルフ 関西ネットゴルフ 堀口税理士事務所