全ての一戸建て・マンション・土地・収益物件・賃貸物件の売却購入情報|関西ネット不動産

西宮市、尼崎市、伊丹市、芦屋市、宝塚市の売買仲介(ご売却・ご購入)、査定、賃貸仲介、賃貸管理は関西ネット不動産へ

西宮店0798-31-0119、尼崎店06-4950-6311、北大阪店072-737-4787、大阪南森町店06-6360-4511、新大阪店06-6152-7878

ご相談・お問い合わせ無料!(営業時間 9:00〜18:00 定休日:火曜日、水曜日)

TOP > 物件一覧

関西ネットリフォーム 空家相続センターオープンハウス お客様の声 採用情報

販売物件情報
一覧へ戻る

成約済 西宮市津門西口町土地 物件ID 2515

3WAYアクセス可!南・東・西の三方角地で採光・通風良好!

価格 交通 土地面積 坪数 建ぺい率 容積率
成約済 阪急今津線 今津駅 徒歩6分
JR神戸線 西宮駅 徒歩7分
阪神本線 今津駅 徒歩7分
90.37m² 27.33坪 60% 200%
4方向からの採光、通風有り

4方向からの採光、通風有り

画像

北側隣地は駐車場部分となります。

  • 南側道路幅員約6m

    南側道路幅員約6m

  • 参考外観パース

    参考外観パース

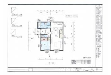
  • 建物参考プラン1階 間取図

    建物参考プラン1階 間取図

  • 建物参考プラン2階 間取図

    建物参考プラン2階 間取図

担当者メッセージ
スタッフ画像

吉岡 勇樹

担当者詳細

西宮市津門西口町 土地


阪急・JR・阪神の3WAY!4方向からの採光、通風有り!

阪急今津線  「今津」駅 徒歩約6分

JR東海道本線 「西宮」駅 徒歩約7分

阪神本線   「今津」駅 徒歩約7分

平坦なので、通勤、お買い物にも大変便利な立地です!

 

・阪急今津駅から西宮北口駅まで電車に乗って約3分で行けますので

人気の西宮北口ガーデンズも楽々お買い物が出来ます!

・JR西宮駅から大阪駅まで乗り換え無し約12分!三宮駅まで約15分!

快速が通っているので、通勤にすごく便利です!

・阪神今津駅から阪神西宮駅まで電車で約2分です。

西宮駅には年始に十日戎が有りますので、お子様を連れて屋台に行くと

大変喜ばれますよ!

 


日当りがすごく良いです!

物件は南側公道約6.0m、東側私道約4.2m、西側通路約5.1mと

3方向からの日当り、風通しの感じられる立地となります!

更に!北側は駐車場になっている為、とっても明るいです。

建築条件はございませんので、

お客様のお好みの工務店さんやハウスメーカーさんで

建築して頂く事が出来ます!

まだお決まりでない方には、お好みやご予算に合った

工務店さんをご紹介させて頂く事も可能ですので、

お気軽にご相談下さい!

たくさんの家造りを見てきたからこその

経験談をお話ししたり、ご提案が出来ます!

どんなことでもお気軽にお話し下さい!

 


★参考プラン入りました!!

延べ床面積:106.00㎡の

広々とした2階建てプラン!

※詳細は担当までご連絡下さい!

 

【周辺環境】

・フレンテ西宮 約500m

・ニトリ西宮駅前店 約500m

・ウエルシア西宮今津店 約400m

・サンディ今津店 約400m

・西口公園 約190m

・ファミリーマート今津駅前店 約450m

・兵庫県立西宮病院 約1100m

・西宮市役所 約900m

・総合福祉センター 約550m

 

■お問合せは下記まで■

担当:吉岡

0120-698-398

リフォームページが拡大リニューアル致しました!
関西ネットリフォームHP
小規模リフォームから全面リノベーションまで、関西ネットリフォームにお任せください。
物件探しからリフォーム・リノベーションまでのワンストップサービスや、賃貸物件の空室対策リフォーム、店舗設計、解体工事まで、幅広くお手伝いさせていただきます。
楽しく、快適に暮らしていただきたいをモットーに、関西ネットリフォームでは真心を込めたリフォームをご提案致します。
こちらのホームページでは施工事例を多数掲載しておりますので是非ご覧ください!

物件情報
物件名 西宮市津門西口町土地
所在地 西宮市津門西口町14-24
交通 阪急今津線 今津駅 徒歩6分
JR神戸線 西宮駅 徒歩7分
阪神本線 今津駅 徒歩7分
価格 成約済
土地面積 90.37m²(27.33坪)
土地権利 所有権
用途地域 第1種住居地域
建ぺい率 60%
容積率 200%
接道状況 南側公道幅員約6mに約8.8m接面/東側私道幅員約4.2mに約10m接面
現況 建物あり
引渡し 相談
取引態様 仲介
小学校区 津門小学校 約550m
中学校区 今津中学校 約1100m
お問い合わせ
お問い合わせ内容(*)

お名前(*)
フリガナ
メールアドレス(*)
電話番号(*)
FAX番号
その他ご質問・要望など
ご連絡方法の指定(*)
同じエリアの物件
画像

土地

成約済

物件ID 3452

西宮市北名次町土地(古家有)

所在地:
西宮市北名次町
価格 交通 土地面積 坪数 建ぺい率 容積率
成約済 阪急甲陽線 苦楽園口駅駅 徒歩2分
阪急神戸線 夙川駅 徒歩16分
101.05m² 30.56坪 60% 200%

土地

成約済

物件ID 3305

西宮市中前田町建築条件なし土地

所在地:
西宮市中前田町4-7
価格 交通 土地面積 坪数 建ぺい率 容積率
成約済 JR神戸線 西宮駅 徒歩12分
阪神本線 西宮駅 徒歩13分
阪急神戸線 西宮北口駅 徒歩19分
126.63m² 38.3坪 80% 300%
画像

土地

成約済

物件ID 3115

西宮市石在町建築条件なし土地

所在地:
西宮市石在町
価格 交通 土地面積 坪数 建ぺい率 容積率
成約済 阪神本線 西宮駅 徒歩13分

100.51m² 30.4坪 60% 200%
画像

土地

成約済

物件ID 3072

西宮市上鳴尾町土地

建築条件なし!南西角地、間口広々!駅から4分の好立地!

所在地:
西宮市上鳴尾町20
価格 交通 土地面積 坪数 建ぺい率 容積率
成約済 阪神本線 甲子園駅 徒歩4分

79.4m² 24.01坪 60% 200%
画像

土地

成約済

物件ID 3069

西宮市深谷町土地

建築条件なし!建物解体費不要の約42坪、整形地で間口約10.5m、阪急夙川駅徒歩約16分!

所在地:
西宮市深谷町38番3
価格 交通 土地面積 坪数 建ぺい率 容積率
成約済 阪急神戸線 夙川駅 徒歩16分

139.42m² 42.17坪 40% 100%

■西宮市・尼崎市・芦屋市・東灘区・伊丹市・大阪市、特にJR甲子園口・JR尼崎のエリアで不動産を「売る」・「貸す」・「リフォーム」をご検討の方は、是非、関西ネット不動産にご相談下さい。
■高く売る・早く売る・広告しないで売却・こっそり売却・高く買い取りなどのご要望にもお応え致します。
■取り扱い物件は、新築住宅(戸建)・中古住宅(戸建)・マンション・土地・借地等です。また相続関係・債務整理・任意売却・住宅ローン返済にお困りの方も、弊社売却専門サイトをご覧下さい→西宮不動産売却ナビはこちら
■私の不動産いくら? 無料査定お気軽にご相談下さい。

タカセ不動産 関西ネットゴルフ 関西ネットゴルフ 堀口税理士事務所