全ての一戸建て・マンション・土地・収益物件・賃貸物件の売却購入情報|関西ネット不動産

西宮市、尼崎市、伊丹市、芦屋市、宝塚市の売買仲介(ご売却・ご購入)、査定、賃貸仲介、賃貸管理は関西ネット不動産へ

西宮店0798-31-0119、尼崎店06-4950-6311、北大阪店072-737-4787、大阪南森町店06-6360-4511、新大阪店06-6152-7878

ご相談・お問い合わせ無料!(営業時間 9:00〜18:00 定休日:火曜日、水曜日)

TOP > 物件一覧

関西ネットリフォーム 空家相続センターオープンハウス お客様の声 採用情報

販売物件情報
一覧へ戻る

成約済 天満橋北スカイハイツ 物件ID 2085

13階部分南西角部屋☆ペット飼育可☆南向きバルコニー☆5沿線4駅利用可☆

価格 交通 専有面積 間取り 階数 築年数
成約済 JR東西線 大阪天満宮駅 徒歩5分
地下鉄谷町線 地下鉄堺筋線 南森町駅 徒歩8分
JR大阪環状線 天満駅 徒歩13分
60.39m² 1LDK 14 昭和55年8月
2017年7月大規模修繕完了!大変キレイになりました!

2017年7月大規模修繕完了!大変キレイになりました!

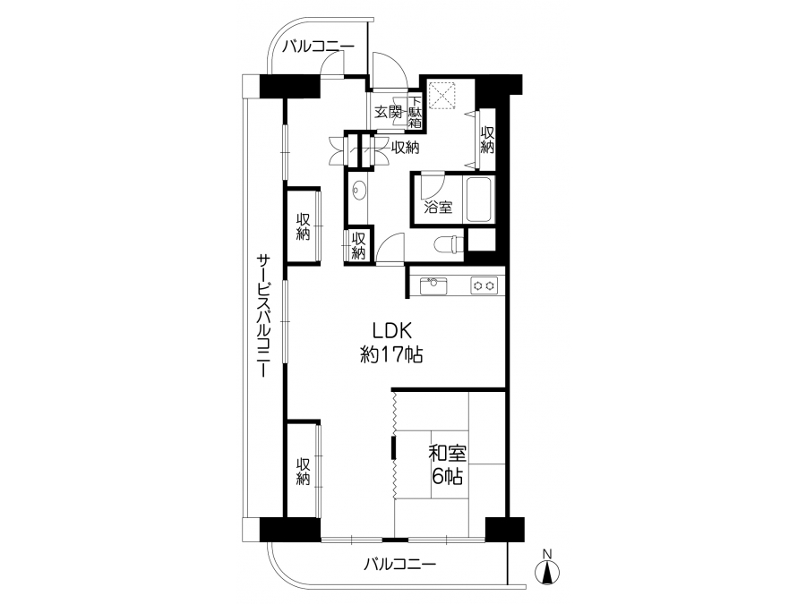
  • 約17帖あるリビング☆2面採光で明るく開放感があります☆

    約17帖あるリビング☆2面採光で明るく開放感があります☆

  • キッチン

    キッチン

  • 南東方面バルコニー眺望☆眺望・陽当り良好!大阪城も見えます!

    南東方面バルコニー眺望☆眺望・陽当り良好!大阪城も見えます!

  • リフォームプラン☆収納の位置を変えLDKを使いやすいよう変更☆

    リフォームプラン☆収納の位置を変えLDKを使いやすいよう変更☆

その他ギャラリー

担当者メッセージ
スタッフ画像

松原 剛一

担当者詳細

☆天満橋北スカイハイツ☆

 

☆★14階建て、13階部分の角部屋★☆

☆★ペット飼育可★☆ 

 

自分のニーズに合わせ好きなように改装できます

間取り・立地・周辺環境などすべてが希望通りの物件にはなかなか

出会えないといったことはありませんか?

立地や周辺環境は変更することができない重要な要素ですが、間取りは

リノベーションすることで変更が可能です。

自分の好みや生活スタイルに合わせて、間取りやテイストをリノベーション

することで、あなたの理想の暮らしを実現することできます。

こちらでご紹介しているのは参考プランですので、希望の住まい方や

生活スタイルをヒアリングの上、お客様に最適なリノベーションプランを

ご提案させて頂きます

 

例①:クロス張替・床張替などの表面改装・・・約90万円

2,480万円+90万円⇒月々返済69,883円

 

例②:表面改装+水回り設備交換・・・約350万円

2,480万円+350万円⇒月々返済76,953円

 

例③:フルリノベーション・・・約530万円

2,480万円+530万円⇒月々返済81,848円

 

※金利0.775% 借入期間35年の場合

 

☆5沿線4駅利用可能な好立地!

 ■ JR東西線「大阪天満宮」駅 徒歩5分★

 ■ 地下鉄谷町線「南森町」駅 徒歩8分★

 ■ 地下鉄堺筋線「南森町」駅 徒歩8分★

 ■ 大阪環状線「天満」駅 徒歩13分★

 ■ 京阪本線「天満橋」駅 徒歩11分★

 

☆近隣商業施設も充実!

・コンビニまで 徒歩1分☆

・グルメシティ 徒歩5分☆

・天神橋筋商店街 徒歩7分☆

・堀川小学校 徒歩5分☆

 

☆建物設備も充実♪♪

エレベーター、駐輪場、駐車場、バイク置場、防犯カメラ等

2017年7月大規模修繕完了 共用部が大変キレイになりました♪

 

北区の中でもタワーマンションやオフィスビルのある都心部のエリアです☆

近隣スーパーは徒歩5分、他にも天神橋筋商店街があり、買い物には困りません☆

桜の通り抜けがある造幣局や、夏には淀川花火も観賞できます。緑豊かで環境の良い立地(^^)

 

内覧予約受付中です(^▽^)

お問い合わせ、ご内覧予約はお気軽に!

フリーダイヤル:0120-798-598

 

リフォームページが拡大リニューアル致しました!
関西ネットリフォームHP
小規模リフォームから全面リノベーションまで、関西ネットリフォームにお任せください。
物件探しからリフォーム・リノベーションまでのワンストップサービスや、賃貸物件の空室対策リフォーム、店舗設計、解体工事まで、幅広くお手伝いさせていただきます。
楽しく、快適に暮らしていただきたいをモットーに、関西ネットリフォームでは真心を込めたリフォームをご提案致します。
こちらのホームページでは施工事例を多数掲載しておりますので是非ご覧ください!

物件情報
物件名 天満橋北スカイハイツ
所在地 大阪市北区東天満2丁目1-23
交通 JR東西線 大阪天満宮駅 徒歩5分
地下鉄谷町線 地下鉄堺筋線 南森町駅 徒歩8分
JR大阪環状線 天満駅 徒歩13分
価格 成約済
専有面積 60.39m²(18.26坪)
バルコニー面積 9.02m²(2.72坪)
築年月 昭和55年8月
構造 鉄筋鉄骨コンクリート造
階数 14階建
所在階 13階部分
間取り 1LDK
設備 洗面・トイレ・浴室 温水洗浄便座/シャワー付き洗面台
キッチン システムキッチン
その他設備 TVモニター付きインターホン/エレベーター
ペット可 可(規約有)
駐車場 空無し
総戸数 52戸
管理費 9,960円
修繕積立費 10,870円
備考 トランクルーム月額使用料670円
現況 空家
引渡し 相談
取引態様 専任
小学校区 堀川小学校
中学校区 北陵中学校
周辺地図

大きな地図を見る

※物件の周辺イメージを表すものであり、実際の物件とは異なる場合がございます。

お問い合わせ
お問い合わせ内容(*)

お名前(*)
フリガナ
メールアドレス(*)
電話番号(*)
FAX番号
その他ご質問・要望など
ご連絡方法の指定(*)
同じエリアの物件

マンション

成約済

物件ID 3589

新大阪ビジネス第2ニッケンマンション

新大阪ビジネス第2ニッケンマンション

所在地:
大阪市淀川区西宮原三丁目2-1
価格 交通 専有面積 間取り 所在階 築年数
成約済 地下鉄御堂筋線 東三国駅駅 徒歩7分
JR東海道本線 新大阪駅駅 徒歩13分
阪急宝塚線 三国駅駅 徒歩16分
17.5m² 1R 3 昭和49年7月
画像

マンション

成約済

物件ID 3548

栄南団地10号棟

栄南団地10号棟

所在地:
栄南団地10号棟501号
価格 交通 専有面積 間取り 所在階 築年数
成約済 JR福知山線 川西池田駅 徒歩3分
阪急宝塚線 川西能勢口駅 徒歩3分
能勢電鉄妙見線 川西能勢口駅 徒歩3分
70.09m² 3LDK 5 1983/5
画像

マンション

成約済

物件ID 3495

ハイマート新大阪

所在地:
大阪府大阪市淀川区5丁目9番39号
価格 交通 専有面積 間取り 所在階 築年数
成約済 地下鉄御堂筋線 東三国駅駅 徒歩4分
JR東海道本線 新大阪駅駅 徒歩11分
66.7m² 2LDK 8 1978年4月
画像

マンション

成約済

物件ID 3496

エスリード新大阪第6

所在地:
大阪市淀川区西中島1丁目1-6
価格 交通 専有面積 間取り 所在階 築年数
成約済 阪急京都線 南方駅駅 徒歩8分
JR東海道本線 新大阪駅駅 徒歩14分
18.36m² 1K 5 平成9年8月
画像

マンション

成約済

物件ID 3505

十三本町ユニハウス

所在地:
大阪市淀川区十三本町3丁目5-11
価格 交通 専有面積 間取り 所在階 築年数
成約済 阪急神戸線 十三駅 徒歩7分

24.91m² 1R 7 1988年11月

■西宮市・尼崎市・芦屋市・東灘区・伊丹市・大阪市、特にJR甲子園口・JR尼崎のエリアで不動産を「売る」・「貸す」・「リフォーム」をご検討の方は、是非、関西ネット不動産にご相談下さい。
■高く売る・早く売る・広告しないで売却・こっそり売却・高く買い取りなどのご要望にもお応え致します。
■取り扱い物件は、新築住宅(戸建)・中古住宅(戸建)・マンション・土地・借地等です。また相続関係・債務整理・任意売却・住宅ローン返済にお困りの方も、弊社売却専門サイトをご覧下さい→西宮不動産売却ナビはこちら
■私の不動産いくら? 無料査定お気軽にご相談下さい。

タカセ不動産 関西ネットゴルフ 関西ネットゴルフ 堀口税理士事務所