全ての一戸建て・マンション・土地・収益物件・賃貸物件の売却購入情報|関西ネット不動産

西宮市、尼崎市、伊丹市、芦屋市、宝塚市の売買仲介(ご売却・ご購入)、査定、賃貸仲介、賃貸管理は関西ネット不動産へ

西宮店0798-31-0119、尼崎店06-4950-6311、北大阪店072-737-4787、大阪南森町店06-6360-4511、新大阪店06-6152-7878

ご相談・お問い合わせ無料!(営業時間 9:00〜18:00 定休日:火曜日、水曜日)

TOP > 物件一覧

関西ネットリフォーム 空家相続センターオープンハウス お客様の声 採用情報

販売物件情報
一覧へ戻る

成約済 柏堂西町戸建 物件ID 2082

賃料 敷金 礼金 交通 専有面積 間取り 築年数
成約済 2ヶ月 2ヶ月 阪急甲陽線 甲陽園駅 徒歩28分
阪急甲陽線 苦楽園口駅 徒歩32分
216.98m² 4LDK 平成20年9月
担当者メッセージ
スタッフ画像

森分 達也

担当者詳細

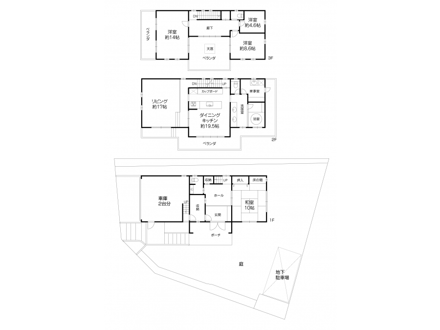
西宮市柏堂西町戸建

 

人気の甲陽園エリアに築浅の戸建が登場!!

大きな庭付きで、建物216.98㎡

駐車場も電動シャッター付車庫に2台

その他に1台~2台は駐車可能です。

オススメはお部屋からの夜景です!

ペットも飼育相談可能です。

 

■阪急甲陽線

「甲陽園」駅 徒歩約28分

 

人気の学校区

 ・苦楽園小学校 542m

 ・苦楽園中学校 442m 

 

お気軽にお問合せ下さい。

担当:森分(もりわけ)

0120-698-398

リフォームページが拡大リニューアル致しました!
関西ネットリフォームHP
小規模リフォームから全面リノベーションまで、関西ネットリフォームにお任せください。
物件探しからリフォーム・リノベーションまでのワンストップサービスや、賃貸物件の空室対策リフォーム、店舗設計、解体工事まで、幅広くお手伝いさせていただきます。
楽しく、快適に暮らしていただきたいをモットーに、関西ネットリフォームでは真心を込めたリフォームをご提案致します。
こちらのホームページでは施工事例を多数掲載しておりますので是非ご覧ください!

物件情報
物件名 柏堂西町戸建
所在地 西宮市柏堂西町4番1号
交通 阪急甲陽線 甲陽園駅 徒歩28分
阪急甲陽線 苦楽園口駅 徒歩32分
賃料 成約済
敷金 2ヶ月
礼金 2ヶ月
専有面積 216.98m²(65.63坪)
築年月 平成20年9月
構造 鉄筋コンクリート造
階数 3階建
方位 南東
間取り 4LDK
設備 洗面・トイレ・浴室 温水洗浄便座
キッチン システムキッチン/対面式キッチン/食器洗浄乾燥機
バルコニー・庭
ペット可 小型犬1匹程度
駐車場 シャッター付き車庫 3台から4台
取引態様 専属専任
小学校区 苦楽園小学校
中学校区 苦楽園中学校
物件種別 戸建
入居時期 平成30年2月中旬
契約形式 定期借家契約
契約期間 10年
周辺地図

大きな地図を見る

※物件の周辺イメージを表すものであり、実際の物件とは異なる場合がございます。

お問い合わせ
お問い合わせ内容(*)

お名前(*)
フリガナ
メールアドレス(*)
電話番号(*)
FAX番号
その他ご質問・要望など
ご連絡方法の指定(*)
同じエリアの物件
画像

賃貸物件

成約済

物件ID 1327

ダイドーメゾン西宮北口

外観も少しお洒落な物件ですよ♪

所在地:
西宮市平木町3-7
物件種類:
賃貸マンション
賃料 交通 専有面積 間取り 築年数
成約済 阪急神戸線 西宮北口駅 徒歩7分
JR東海道本線 西宮駅 徒歩13分
20.6m² 1R 昭和59年3月
画像

賃貸物件

成約済

物件ID 3008

池田町店舗

所在地:
西宮市池田町10番6号
賃料 敷金 礼金 交通 専有面積 間取り 築年数
成約済 3ヶ月 1ヶ月 JR神戸線 西宮駅
阪急神戸線 西宮北口駅 徒歩21分
阪神本線 西宮駅
100m² 昭和57年11月
画像

賃貸物件

成約済

物件ID 3003

ジオ・ウェリス西宮北口

西宮北口駅徒歩4分!10階部分の南向き!

所在地:
西宮市両度町5-27
賃料 敷金 礼金 交通 専有面積 間取り 築年数
成約済 1ヶ月 2ヶ月 阪急神戸線 西宮北口駅 徒歩4分

65.9m² 3LDK 平成17年11月
画像

賃貸物件

成約済 空家再生

物件ID 2993

段上町5丁目建物

段上町5丁目建物

所在地:
西宮市段上町5丁目11番15号
物件種類:
倉庫
賃料 敷金 礼金 交通 専有面積 間取り 築年数
成約済 無し 無し 阪急今津線 仁川駅 徒歩13分
阪急今津線 甲東園駅 徒歩17分
61.6m² 4LDK 昭和52年12月
画像

賃貸物件

成約済

物件ID 1757

Nグランビル 丸橋町商業用ビル 3階

171号線ロードサイド店舗

所在地:
西宮市丸橋町7番15号
物件種類:
店舗 事務所 倉庫
賃料 敷金 礼金 交通 専有面積 間取り 築年数
成約済 1ヶ月 2ヶ月 阪急今津線 門戸厄神駅 徒歩8分
阪急神戸線 西宮北口駅 徒歩10分
77.96m² 平成4年築

■西宮市・尼崎市・芦屋市・東灘区・伊丹市・大阪市、特にJR甲子園口・JR尼崎のエリアで不動産を「売る」・「貸す」・「リフォーム」をご検討の方は、是非、関西ネット不動産にご相談下さい。
■高く売る・早く売る・広告しないで売却・こっそり売却・高く買い取りなどのご要望にもお応え致します。
■取り扱い物件は、新築住宅(戸建)・中古住宅(戸建)・マンション・土地・借地等です。また相続関係・債務整理・任意売却・住宅ローン返済にお困りの方も、弊社売却専門サイトをご覧下さい→西宮不動産売却ナビはこちら
■私の不動産いくら? 無料査定お気軽にご相談下さい。

タカセ不動産 関西ネットゴルフ 関西ネットゴルフ 堀口税理士事務所