全ての一戸建て・マンション・土地・収益物件・賃貸物件の売却購入情報|関西ネット不動産

西宮市、尼崎市、伊丹市、芦屋市、宝塚市の売買仲介(ご売却・ご購入)、査定、賃貸仲介、賃貸管理は関西ネット不動産へ

西宮店0798-31-0119、尼崎店06-4950-6311、北大阪店072-737-4787、大阪南森町店06-6360-4511、新大阪店06-6152-7878

ご相談・お問い合わせ無料!(営業時間 9:00〜18:00 定休日:火曜日、水曜日)

TOP > 物件一覧

関西ネットリフォーム 空家相続センターオープンハウス お客様の声 採用情報

販売物件情報
一覧へ戻る

成約済 ハイネス常盤町 物件ID 1494

新規フルリフォーム済です☆

価格 交通 専有面積 間取り 階数 築年数
成約済 地下鉄谷町線 谷町四丁目駅 徒歩4分
地下鉄中央線 谷町四丁目駅 徒歩4分
62.98m² 2LDK 11 昭和57年2月
外観

外観

画像

間取り

  • LDK

    LDK

  • バス

    バス

  • トイレ

    トイレ

  • 洋室

    洋室

担当者メッセージ
スタッフ画像

谷村 嘉彦

担当者詳細

☆ハイネス常盤町☆

 

3つのおすすめポイント!

 

その①

生活至便な立地

・地下鉄谷町線・中央線 谷町四丁目駅 徒歩4分

・セブンイレブン 約140m

・郵便局 約240m

・大阪市中央区役所 約550m

・業務用スーパー 約400m

・スギ薬局 約300m

 

その②

新規フルリフォーム済(平成28年7月完了)

・キッチン

・ユニットバス

・洗面化粧台

・便器

・玄関収納

・フローリング貼替、フロアタイル貼替、クロス貼替

・ハウスクリーニング 等

 

その③

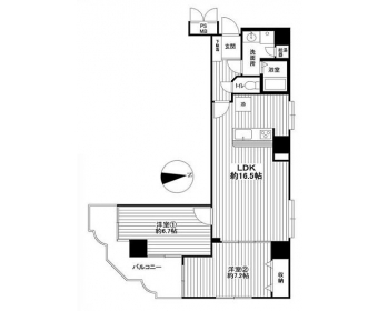
南向き、日当り良好の2LDK

・洋室 約6.7帖・約7.2帖、LDK 約16.5帖

・専有面積  約62.98㎡

・バルコニー面積 約8.06㎡

 

お問い合わせ・ご内覧予約はお気軽に♪

リフォームページが拡大リニューアル致しました!
関西ネットリフォームHP
小規模リフォームから全面リノベーションまで、関西ネットリフォームにお任せください。
物件探しからリフォーム・リノベーションまでのワンストップサービスや、賃貸物件の空室対策リフォーム、店舗設計、解体工事まで、幅広くお手伝いさせていただきます。
楽しく、快適に暮らしていただきたいをモットーに、関西ネットリフォームでは真心を込めたリフォームをご提案致します。
こちらのホームページでは施工事例を多数掲載しておりますので是非ご覧ください!

物件情報
物件名 ハイネス常盤町
所在地 大阪市中央区常盤町2-1-3
交通 地下鉄谷町線 谷町四丁目駅 徒歩4分
地下鉄中央線 谷町四丁目駅 徒歩4分
価格 成約済
専有面積 62.98m²(19.05坪)
バルコニー面積 8.06m²(2.43坪)
築年月 昭和57年2月
構造 鉄筋鉄骨コンクリート造
階数 11階建
所在階 5階部分
間取り 2LDK
設備 洗面・トイレ・浴室 温水洗浄便座
キッチン システムキッチン
お問い合わせ
お問い合わせ内容(*)

お名前(*)
フリガナ
メールアドレス(*)
電話番号(*)
FAX番号
その他ご質問・要望など
ご連絡方法の指定(*)
同じエリアの物件

マンション

成約済

物件ID 3589

新大阪ビジネス第2ニッケンマンション

新大阪ビジネス第2ニッケンマンション

所在地:
大阪市淀川区西宮原三丁目2-1
価格 交通 専有面積 間取り 所在階 築年数
成約済 地下鉄御堂筋線 東三国駅駅 徒歩7分
JR東海道本線 新大阪駅駅 徒歩13分
阪急宝塚線 三国駅駅 徒歩16分
17.5m² 1R 3 昭和49年7月
画像

マンション

成約済

物件ID 3548

栄南団地10号棟

栄南団地10号棟

所在地:
栄南団地10号棟501号
価格 交通 専有面積 間取り 所在階 築年数
成約済 JR福知山線 川西池田駅 徒歩3分
阪急宝塚線 川西能勢口駅 徒歩3分
能勢電鉄妙見線 川西能勢口駅 徒歩3分
70.09m² 3LDK 5 1983/5
画像

マンション

成約済

物件ID 3495

ハイマート新大阪

所在地:
大阪府大阪市淀川区5丁目9番39号
価格 交通 専有面積 間取り 所在階 築年数
成約済 地下鉄御堂筋線 東三国駅駅 徒歩4分
JR東海道本線 新大阪駅駅 徒歩11分
66.7m² 2LDK 8 1978年4月
画像

マンション

成約済

物件ID 3496

エスリード新大阪第6

所在地:
大阪市淀川区西中島1丁目1-6
価格 交通 専有面積 間取り 所在階 築年数
成約済 阪急京都線 南方駅駅 徒歩8分
JR東海道本線 新大阪駅駅 徒歩14分
18.36m² 1K 5 平成9年8月
画像

マンション

成約済

物件ID 3505

十三本町ユニハウス

所在地:
大阪市淀川区十三本町3丁目5-11
価格 交通 専有面積 間取り 所在階 築年数
成約済 阪急神戸線 十三駅 徒歩7分

24.91m² 1R 7 1988年11月

■西宮市・尼崎市・芦屋市・東灘区・伊丹市・大阪市、特にJR甲子園口・JR尼崎のエリアで不動産を「売る」・「貸す」・「リフォーム」をご検討の方は、是非、関西ネット不動産にご相談下さい。
■高く売る・早く売る・広告しないで売却・こっそり売却・高く買い取りなどのご要望にもお応え致します。
■取り扱い物件は、新築住宅(戸建)・中古住宅(戸建)・マンション・土地・借地等です。また相続関係・債務整理・任意売却・住宅ローン返済にお困りの方も、弊社売却専門サイトをご覧下さい→西宮不動産売却ナビはこちら
■私の不動産いくら? 無料査定お気軽にご相談下さい。

タカセ不動産 関西ネットゴルフ 関西ネットゴルフ 堀口税理士事務所