全ての一戸建て・マンション・土地・収益物件・賃貸物件の売却購入情報|関西ネット不動産

西宮市、尼崎市、伊丹市、芦屋市、宝塚市の売買仲介(ご売却・ご購入)、査定、賃貸仲介、賃貸管理は関西ネット不動産へ

西宮店0798-31-0119、尼崎店06-4950-6311、北大阪店072-737-4787、大阪南森町店06-6360-4511、新大阪店06-6152-7878

ご相談・お問い合わせ無料!(営業時間 9:00〜18:00 定休日:火曜日、水曜日)

TOP > 物件一覧

関西ネットリフォーム 空家相続センターオープンハウス お客様の声 採用情報

販売物件情報
一覧へ戻る

成約済 西宮市宮西町中古戸建 物件ID 1200

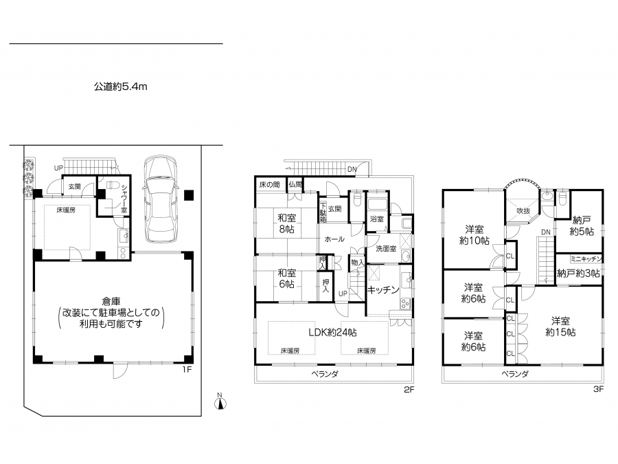
広々7SSLDK!土地面積約49坪!2世帯仕様の中古戸建!

価格 交通 土地面積 建物面積 間取り 築年数
成約済 阪神本線 香櫨園駅 徒歩3分
JR神戸線 さくら夙川駅 徒歩5分
阪急神戸線 夙川駅 徒歩10分
162.87m² 265.14m² 7SSLDK 昭和60年3月
3WAYアクセス可能の好立地!

3WAYアクセス可能の好立地!

画像

建物面積265.14平米の7SSLDK!

  • 前面道路も広々約5.4m!

    前面道路も広々約5.4m!

  • 西宮七園の一つ、香櫨園の住宅街です。

    西宮七園の一つ、香櫨園の住宅街です。

  • 庭

  • バルコニー

    バルコニー

担当者メッセージ
スタッフ画像

松見 努

担当者詳細

西宮市宮西町中古戸建

 

西宮七園の一つ“香櫨園”

希少な中古戸建が登場しました!

歴史ある閑静な住宅街。

近くを流れる夙川は

さくら百選に選ばれる桜の名所です。

休日の夙川公園には季節を問わず、

ジョギングや散歩の方がいて、

大変環境の良い住みやすい住宅地です。

 

 閑静な住宅地でありながら、

3沿線3駅アクセス可能の便利さも!!

●阪神本線 『香櫨園』駅 徒歩約3分

●JR神戸線 『さくら夙川』駅 徒歩約5分

●阪急神戸線 『夙川』駅 徒歩約10分

3沿線がこれだけ近くにある便利な立地は

なかなかありません!

 

 

建物も希少な二世帯仕様!

7SSLDK!

■土地面積 162.87平米

         (約49.27坪)

■建物面積 265.14平米

 

■前面道路も広々約5.4m!

 お車の出し入れもラクラクです!

 

1階部分の倉庫は簡単な改装工事で

多目的スペースへ変更可能!

お車好きの方は、大きな駐車場としても

使用可能ですし、趣味のスペースとして、

お荷物の多い方はそのまま倉庫としても

ご使用可能です!

 

2階部分のLDKは広々 約24帖の大空間!

家族が集まるLDKは南向きの広々バルコニーに

面し、明るい空間です。

床暖房も二か所ございます。

 

3階部分には洋室が4室!

一つ一つのお部屋がゆったりとしており、

5帖、3帖の納戸があります!

 

それぞれの階にトイレやちょっとした

水廻りがありますので、非常に便利な間取りです!

 

【学校区】

・香櫨園小学校 約730m

・浜脇中学校 約610m

 

リフォームページが拡大リニューアル致しました!
関西ネットリフォームHP
小規模リフォームから全面リノベーションまで、関西ネットリフォームにお任せください。
物件探しからリフォーム・リノベーションまでのワンストップサービスや、賃貸物件の空室対策リフォーム、店舗設計、解体工事まで、幅広くお手伝いさせていただきます。
楽しく、快適に暮らしていただきたいをモットーに、関西ネットリフォームでは真心を込めたリフォームをご提案致します。
こちらのホームページでは施工事例を多数掲載しておりますので是非ご覧ください!

物件情報
物件名 西宮市宮西町中古戸建
所在地 西宮市宮西町3-27
交通 阪神本線 香櫨園駅 徒歩3分
JR神戸線 さくら夙川駅 徒歩5分
阪急神戸線 夙川駅 徒歩10分
価格 成約済
土地面積 162.87m²(49.26坪)
建物面積 265.14m²(80.2坪)
築年月 昭和60年3月
構造 木造一部RC造
階数 3階建
方位
間取り 7SSLDK
設備 洗面・トイレ・浴室 温水洗浄便座/トイレ2カ所/シャワー付き洗面台/追い炊き/浴室乾燥機
キッチン システムキッチン
収納 納戸
その他設備 床暖房
バルコニー・庭 南面バルコニー
駐車場 あり 
土地権利 所有権
用途地域 第1種住居地域
建ぺい率 60%
容積率 200%
接道状況 北側 公道幅員 約5.4m
現況 所有者居住中
引渡し 相談
取引態様 専属専任
小学校区 香櫨園小学校 約730m
中学校区 浜脇中学校 約610m
周辺地図

大きな地図を見る

※物件の周辺イメージを表すものであり、実際の物件とは異なる場合がございます。

お問い合わせ
お問い合わせ内容(*)

お名前(*)
フリガナ
メールアドレス(*)
電話番号(*)
FAX番号
その他ご質問・要望など
ご連絡方法の指定(*)
同じエリアの物件
画像

一戸建て

成約済

物件ID 3454

西宮市満池谷町中古戸建 リフォーム物件

◎価格変更! ●建物診断済 耐震補強工事実施済のリフォーム物件!●南東角地にて陽当たり・通風良好です! ペットと暮らせる設備有り(グルーミング有り)●駐車場は並列駐車2台可!●1台はハイルーフ車・SUV車・ワンボックス可、もう1台は普通車(車高は約2mまで)!

所在地:
西宮市満池谷町1-1
価格 交通 土地面積 建物面積 間取り 築年数
成約済 阪急神戸線 夙川駅 徒歩13分
阪急甲陽線 苦楽園口駅 徒歩14分分
245.26m² 168.2m² 3LDK+畳コーナー+WIC+N(納戸)+パントリー 1989年3月建築
画像

一戸建て

成約済

物件ID 3233

西宮市仁川百合野町中古戸建 ※リフォーム物件

南西向き 平成11年4月建築 木造3階建 3LDK 閑静な住宅街 駐車スペース1台~2台(車種制限有り)

所在地:
西宮市仁川百合野町4-48
価格 交通 土地面積 建物面積 間取り 築年数
成約済 阪急今津線 仁川 徒歩23分

124.17m² 109.82m² 3LDK 1999年4月

画像

一戸建て

成約済

物件ID 3476

西宮市甲子園口3丁目新築戸建(完成済)

◎JR甲子園口駅までフラットアクセス徒歩約4分 ◎前面道路公道幅員約4.9m ◎耐震等級2、断熱等級4取得 ◎床暖房、エコジョーズ、ミストカワック付

価格 交通 土地面積 建物面積 間取り 築年数
成約済 JR神戸線 甲子園口駅 徒歩4分

63.05m² 99.59m² 4LDK 2024年10月
画像

一戸建て

成約済

物件ID 3492

西宮市甲子園口2丁目中古戸建

JR甲子園口駅徒歩約8分!◎築浅物件(築約14年)◎駅までフラットアクセス! ◎商業施設充実!

所在地:
西宮市甲子園口2丁目
価格 交通 土地面積 建物面積 間取り 築年数
成約済 JR神戸線 甲子園口駅駅 徒歩8分
阪神本線 甲子園駅 徒歩24分
108.01m² 110.49m² 3LDK 2011年8月
画像

一戸建て

成約済

物件ID 3393

西宮市段上町3丁目新築戸建

所在地:
西宮市段上町3丁目2番24号
価格 交通 土地面積 建物面積 間取り 築年数
成約済 阪急今津線 仁川駅 徒歩12分
阪急今津線 甲東園駅 徒歩12分
58.52m² 97.55m² 3LDK 2024年11月

■西宮市・尼崎市・芦屋市・東灘区・伊丹市・大阪市、特にJR甲子園口・JR尼崎のエリアで不動産を「売る」・「貸す」・「リフォーム」をご検討の方は、是非、関西ネット不動産にご相談下さい。
■高く売る・早く売る・広告しないで売却・こっそり売却・高く買い取りなどのご要望にもお応え致します。
■取り扱い物件は、新築住宅(戸建)・中古住宅(戸建)・マンション・土地・借地等です。また相続関係・債務整理・任意売却・住宅ローン返済にお困りの方も、弊社売却専門サイトをご覧下さい→西宮不動産売却ナビはこちら
■私の不動産いくら? 無料査定お気軽にご相談下さい。

タカセ不動産 関西ネットゴルフ 関西ネットゴルフ 堀口税理士事務所